このページを印刷する
- 価格
-
9,800万円
■■■アピールポイント■■■■■■
■自己利用可能
■JR埼京線戸田駅徒歩9分
■駐車場1台あり
■視認性良好
■■■■■■■■■■■■■■■■■
~周辺インフォメーション~
・郵便局 約120m
・業務スーパー 約130m
・ファミリマート 約270m
・河野内科医院 約400m
・くら寿司 約600m
・マツモトキヨシ 約650m
~戸田駅ってこんなところ~
・JR埼京線の駅です。
・大宮駅まで約17分、池袋駅まで約18分です。
・「戸田市役所」や、「戸田市立図書館」「戸田市スポーツセンター」など公共施設があります
| 所在地 | 埼玉県戸田市新曽 |
|---|---|
| 交通 |
|
| 築年月 | 1995年11月(築30年5ヶ月) | 建物階数 | 地上2階 | ||
|---|---|---|---|---|---|
| 建物構造 | 木造 | ||||
| 延べ床面積 | 248.84m²(75.27坪) | ||||
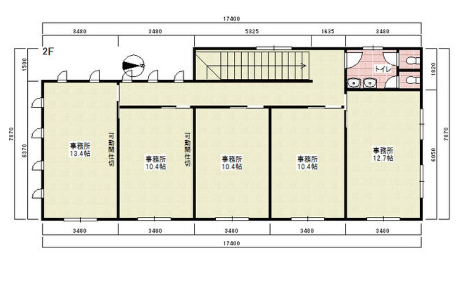
| 間取内容 | 店舗・事務所×9戸 |
||||
| 駐車場 | |||||
| 引渡/入居時期 | 相談 | 現況 | 賃貸中 | ||
| 地目 | 宅地 | 用途地域 | 準住居 | ||
| 都市計画 | 市街化区域 | 地勢 | 平坦 | ||
| 土地面積 | 212.62m²(64.31坪) | 土地面積計測方式 | 公簿 | ||
| 建ぺい率 | 60% | 容積率 | 200% | ||
| 土地権利 | 所有権 | 接道状況 | 一方 | ||
| 接道種別1 | 公道 | 接道幅員1 | 20m | ||
| 国土法届出 | 不要 | ||||
| 物件番号 | 39877 | ||||
| 情報登録日 | 2026年4月11日 | 情報更新日 | 2026年4月11日 | ||
物件掲載内容と現況に相違がある場合は現況を優先といたします。











