このページを印刷する
- 価格
-
11億5,000万円
■■■アピールポイント■■■■■■
■自己利用可能
■八潮駅徒歩8分
■角地
■駐車スペースあり
■■■■■■■■■■■■■■■■■
~周辺インフォメーション~
・まことや(蕎麦屋) 約30m
・セブンイレブン 約230m
・マクドナルド 約300m
・カスミフードスクエア(スーパー) 約450m
・マツモトキヨシ 約500m
・八潮中央総合病院 約550m
・郵便局 約750m
~八潮駅ってこんなところ~
・つくばエクスプレス線の普通・区間加速・快速の全てが停まる駅です。
・秋葉原駅まで最短17分でアクセス可能です
・駅周辺は商業施設が充実するエリアで便利です
| 所在地 | 埼玉県八潮市南川崎 |
|---|---|
| 交通 |
|
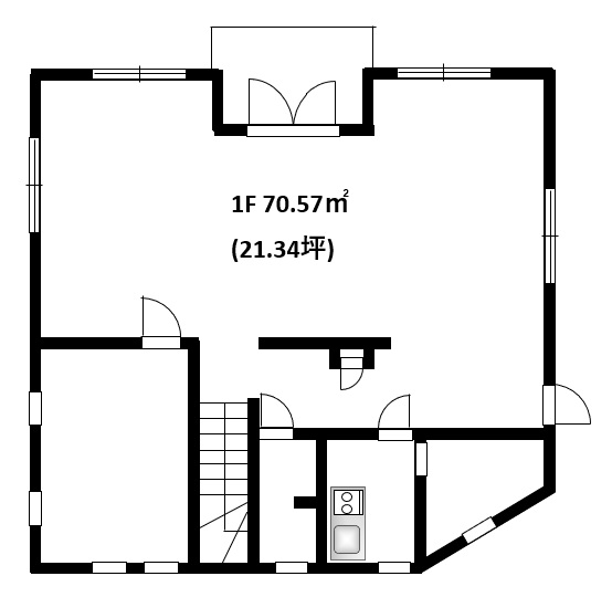
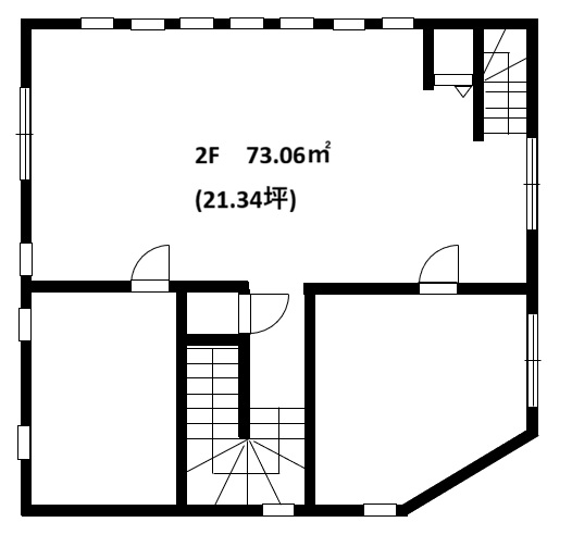
| 築年月 | 2007年5月(築18年11ヶ月) | 建物階数 | 地上2階 | ||
|---|---|---|---|---|---|
| 建物構造 | 木造 | ||||
| 延べ床面積 | 143.63m²(43.44坪) | ||||
| 間取内容 | 店舗・事務所×2戸 |
||||
| 駐車場 | 有 |
||||
| 引渡/入居時期 | 相談 | 現況 | 空家 | ||
| 地目 | 宅地 | 用途地域 | 第一種住居 | ||
| 都市計画 | 市街化区域 | 地勢 | 平坦 | ||
| 土地面積 | 210.45m²(63.66坪) | 土地面積計測方式 | 公簿 | ||
| 土地権利 | 接道状況 | 角地 | |||
| 接道種別1 | 公道 | 接道幅員1 | 20m | ||
| 接道方向2 | 北東 | 接道間口2 | |||
| 接道種別2 | 公道 | 接道幅員2 | 10m | ||
| 国土法届出 | 不要 | ||||
| 物件番号 | 39917 | ||||
| 情報登録日 | 2026年4月11日 | 情報更新日 | 2026年4月11日 | ||
物件掲載内容と現況に相違がある場合は現況を優先といたします。





