このページを印刷する
- 価格
-
1億800万円
■■■アピールポイント■■■■■■
■自己利用可能
■西葛西駅徒歩4分
■駐車場2台付
■整形地
■■■■■■■■■■■■■■■■■
~周辺インフォメーション~
・西葛西・井上眼科医院 約65m
・ファミリマート 約150m
・まいばすけっと(スーパー) 約180m
・ドラックストア 約210m
・郵便局 約350m
~西葛西駅ってこんなところ~
・東京メトロ東西線が通っています。
・大手町や日本橋へダイレクトアクセス可能です。
・公園も多く、ファミリー層も多く住んでいます。
| 所在地 | 東京都江戸川区西葛西 |
|---|---|
| 交通 |
|
| 築年月 | 1985年5月(築40年11ヶ月) | 建物階数 | 地上2階 | ||
|---|---|---|---|---|---|
| 建物構造 | その他 | ||||
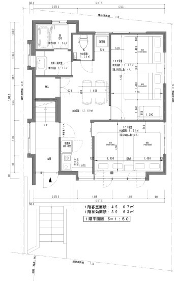
| 延べ床面積 | 101.62m²(30.74坪) | ||||
| 間取内容 | 店舗・事務所×2戸 駐車場2台 |
||||
| 駐車場 | 有 |
||||
| 引渡/入居時期 | 相談 | 現況 | 賃貸中 | ||
| 地目 | 宅地 | 用途地域 | 近隣商業 | ||
| 都市計画 | 市街化区域 | 地勢 | 平坦 | ||
| 土地面積 | 99.08m²(29.97坪) | 土地面積計測方式 | 公簿 | ||
| 建ぺい率 | 80% | 容積率 | 400% | ||
| 接道種別1 | 公道 | 接道幅員1 | 5.9m | ||
| 接道種別2 | 公道 | 接道幅員2 | 5.9m | ||
| 物件番号 | 40335 | ||||
| 情報登録日 | 2026年4月25日 | 情報更新日 | 2026年4月25日 | ||
物件掲載内容と現況に相違がある場合は現況を優先といたします。








