このページを印刷する
- 価格
-
1億5,200万円
■■■アピールポイント■■■■■■
■自己利用可能
■駒沢大学駅徒歩8分
■木下工務店施工
■R5年内外装リフォーム実施済
■■■■■■■■■■■■■■■■■
~周辺インフォメーション~
・セブンイレブン 約350m
・ひふみ亭(中華料理) 約400m
・ココカラファイン(ドラックストア) 約550m
・マルエツ(スーパー) 約600m
・国立病院機構東京医療センター 約600m
・郵便局 約800m
~駒沢大学駅ってこんなところ~
・東急田園都市線が走っています
・3駅隣の渋谷駅までは約8分、反対方向の二子玉川駅にも約8分です。
・国道246号と環状七号線という大きな道路が駅周辺にありバス便も多いです。
・駅周辺にはスーパーマーケットが点在しており買い物に便利です。
| 所在地 | 東京都目黒区東が丘 |
|---|---|
| 交通 |
|
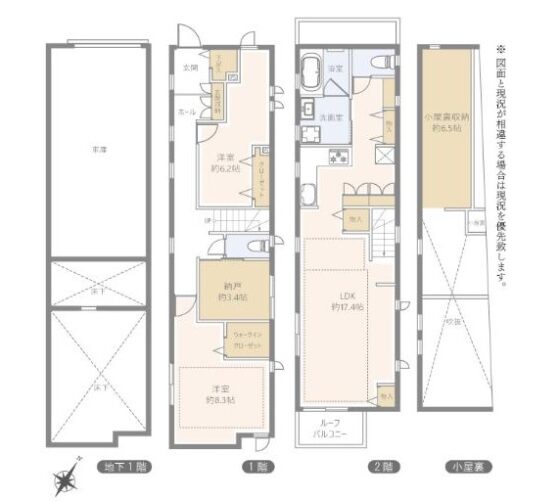
| 築年月 | 2014年12月(築11年) | 建物階数 | 地上2階地下1階 | ||
|---|---|---|---|---|---|
| 建物構造 | 木造 | ||||
| 延べ床面積 | 121.54m²(36.76坪) | ||||
| 間取内容 | 2LDK×1戸 納戸と小屋裏収納があります |
||||
| 駐車場 | 有 |
||||
| 引渡/入居時期 | 相談 | 現況 | 空家 | ||
| 地目 | 宅地 | 用途地域 | 第一種低層住居専 | ||
| 都市計画 | 市街化区域 | 地勢 | 平坦 | ||
| 土地面積 | 87.45m²(26.45坪) | 土地面積計測方式 | 公簿 | ||
| 建ぺい率 | 60% | 容積率 | 150% | ||
| 土地権利 | 所有権 | 接道状況 | 一方 | ||
| 接道種別1 | 公道 | 接道幅員1 | 5.4m | ||
| 国土法届出 | 不要 | ||||
| 物件番号 | 35156 | ||||
| 情報登録日 | 2025年8月16日 | 情報更新日 | 2025年11月1日 | ||
物件掲載内容と現況に相違がある場合は現況を優先といたします。













