このページを印刷する
- 価格
-
1億5,000万円
■■■アピールポイント■■■■■■
■自己利用可能
■日吉駅徒歩5分
■4路線利用可能
■1階部分大ホールあり
■■■■■■■■■■■■■■■■■
~周辺インフォメーション~
・日吉台光幼稚園 約70m
・生鮮市場ダイイチ 約160m
・飯場 松の葉 約200m
・横浜銀行 約210m
・ファミリマート 約220m
・クリエイト(ドラックストア) 約290m
~日吉駅ってこんなところ~
・東急東横線・目黒線・新横浜線、横浜市営地下鉄グリーンラインが走っています
・乗換なしで新横浜駅約7分、横浜駅約14分です。
・乗換なしで渋谷駅約18分、目黒駅約22分です。
・慶應義塾大学日吉キャンパスがあります
| 所在地 | 神奈川県横浜市港北区吉本町 |
|---|---|
| 交通 |
|
| 築年月 | 1984年4月(築41年8ヶ月) | 建物階数 | 地上3階 | ||
|---|---|---|---|---|---|
| 建物構造 | RC | ||||
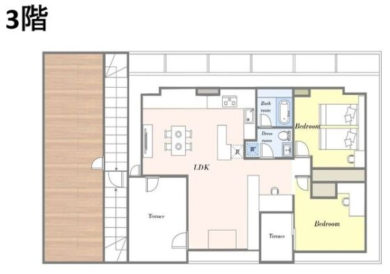
| 間取内容 | 2LDK×1戸 一階部分に大ホールがあります |
||||
| 駐車場 | |||||
| 引渡/入居時期 | 相談 | 現況 | 賃貸中 | ||
| 地目 | 宅地 | 用途地域 | 第一種低層住居専 | ||
| 都市計画 | 市街化区域 | 地勢 | |||
| 土地面積 | 239.74m²(72.52坪) | 土地面積計測方式 | 公簿 | ||
| 建ぺい率 | 50% | 容積率 | 100% | ||
| 土地権利 | 所有権 | 接道状況 | 一方 | ||
| 接道種別1 | 公道 | 接道幅員1 | 5.1m | ||
| 国土法届出 | 不要 | ||||
| 物件番号 | 35681 | ||||
| 情報登録日 | 2025年9月6日 | 情報更新日 | 2025年9月6日 | ||
物件掲載内容と現況に相違がある場合は現況を優先といたします。












