このページを印刷する
- 価格
-
1億6,000万円
■■■アピールポイント■■■■■■
■自己利用可能
■木造居宅、鉄骨多目的ホール分けて売却相談可能
■駐車場複数台有
■多目的ホールはダンススタジオなどにもおすすめ
■■■■■■■■■■■■■■■■■
~物件について~
・居宅:4SLDK
価格:8500万円
構造:鉄骨造
築年:2005年10月
土地:874.75㎡
建物面積:209.25㎡
駐車場:10台分
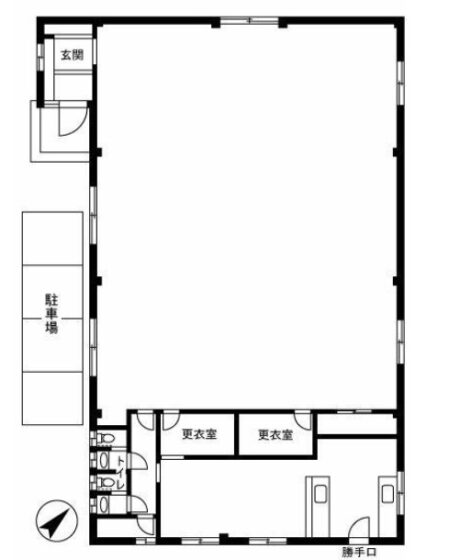
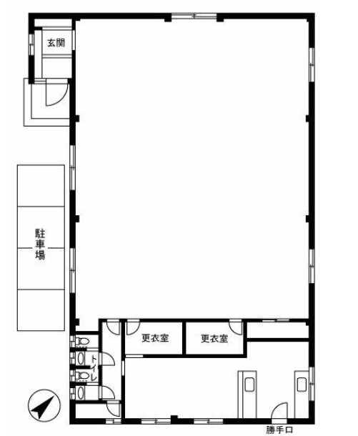
・多目的ホール:1階更衣室 中二階事務所スペース
価格:8000万円
構造:木造
築年:2005年12月
土地:542.41㎡
建物面積:361.16㎡
駐車場:4台分
~周辺インフォメーション~
・黒毛和牛焼肉 約450m
・セブンイレブン 約500m
・オーケー(スーパー) 車で約3分(750m)
・郵便局 車で約4分(1.1㎞)
・医療法人社団 桐伸会 藤井クリニック 車で約2分(850m)
・ウエルシア(ドラックストア) 車で約5分(1.3㎞)
~千葉駅ってこんなところ~
・横須賀・総武快速線、総武・中央緩行線、成田線などJR5路線が使えます
・千葉都市モノレール2路線も利用出来ます
・東京駅や成田空港にも乗換えなしでアクセス出来ます
・駅ビル「ペリエ千葉」などがあり便利です
| 所在地 | 千葉県千葉市若葉区高品町 |
|---|---|
| 交通 |
|
| 築年月 | 2005年10月(築20年2ヶ月) | 建物階数 | 地上2階 | ||
|---|---|---|---|---|---|
| 建物構造 | 木造 | ||||
| 延べ床面積 | 361.16m²(109.25坪) | ||||
| 間取内容 | 4LDK×1戸 +2階建て多目的ホール |
||||
| 駐車場 | 有 |
||||
| 引渡/入居時期 | 相談 | 現況 | 賃貸中 | ||
| 地目 | 宅地 | 用途地域 | 第一種中高層住居専用 | ||
| 都市計画 | 市街化区域 | 地勢 | 平坦 | ||
| 土地面積 | 1417.16m²(428.69坪) | 土地面積計測方式 | 公簿 | ||
| 建ぺい率 | 60% | 容積率 | 200% | ||
| 土地権利 | 所有権 | 接道状況 | 一方 | ||
| 接道種別1 | 公道 | 接道幅員1 | 8m | ||
| 国土法届出 | 不要 | ||||
| 物件番号 | 35869 | ||||
| 情報登録日 | 2025年9月12日 | 情報更新日 | 2025年9月12日 | ||
物件掲載内容と現況に相違がある場合は現況を優先といたします。













