このページを印刷する
- 価格
-
1億2,000万円
- 満室時表面利回り
- 14.4%
■■■アピールポイント■■■■■■
■ホテル改装済み 内見可能!
■旅館業申請中(取得予定)
■スタッフルームあり 法人登記可能
■1階のみ貸出、2–3階のみ貸出、一棟貸出にも対応
■■■■■■■■■■■■■■■■■
内見可能です お気軽にご連絡ください♪
~周辺インフォメーション~
・どらっくぱぱすまで 約400m
・グリーンマート(スーパー)まで 約400m
・コモディイイダまで 約400m
・セブンイレブンまで 約650m
・郵便局まで 約700m
・きらほし銀行まで 約750m
・東日本信用金庫まで 約800m
・新小岩公園まで 約800m
~新小岩駅ってこんなところ~
・総武線(各駅停車)総武快速線の2路線があり便利
・東京、品川、新宿などに乗り換えなしで行ける
・駅周辺にスーパーが多く買い物に便利
・飲食店が多くご飯時に困らない
・「ルミエール」というアーケードが整備された商店街があり、大抵の買い物や外食は駅前で完結する
| 所在地 | 東京都葛飾区西新小岩 |
|---|---|
| 交通 |
|
| 築年月 | 1998年1月(築27年10ヶ月) | 建物階数 | 地上3階 | ||
|---|---|---|---|---|---|
| 建物構造 | 鉄骨造 | ||||
| 延べ床面積 | 189.37m²(57.28坪) | ||||
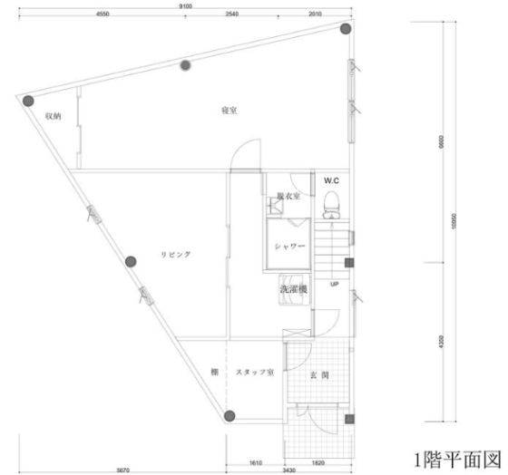
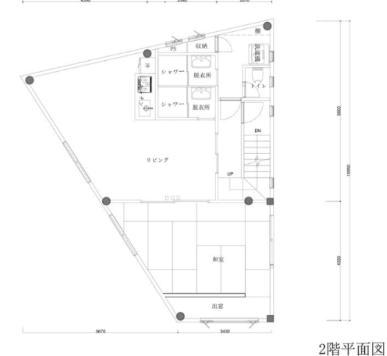
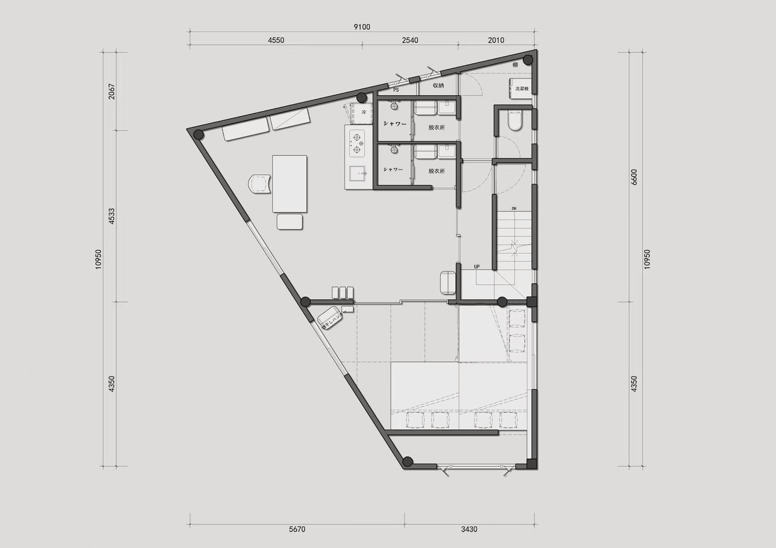
| 間取内容 | 1R×8戸 |
||||
| 駐車場 | 1台 |
||||
| 引渡/入居時期 | 相談 | 現況 | 賃貸中 | ||
| 地目 | 宅地 | 用途地域 | 準工業 | ||
| 都市計画 | 市街化区域 | 地勢 | 平坦 | ||
| 土地面積 | 95.20m²(28.79坪) | 土地面積計測方式 | 公簿 | ||
| 建ぺい率 | 70% | 容積率 | 200% | ||
| 土地権利 | 所有権 | 接道状況 | 二方(除角地) | ||
| 接道種別1 | 公道 | 接道幅員1 | 4m | ||
| 接道方向2 | 西 | 接道間口2 | |||
| 接道種別2 | 公道 | 接道幅員2 | 4m | ||
| 国土法届出 | 不要 | ||||
| 物件番号 | 26352 | ||||
| 情報登録日 | 2024年11月28日 | 情報更新日 | 2025年10月17日 | ||
物件掲載内容と現況に相違がある場合は現況を優先といたします。

























