このページを印刷する
- 価格
-
6,780万円
- 満室時表面利回り
- 7.43%
■■■アピールポイント■■■■■■
■空室 自己利用可能
■角地
■リフォーム済み
■駐車場あり
■■■■■■■■■■■■■■■■■
・屋上防水、外壁洗浄、車庫塗装済み
・エアコン3台新品
・室内リフォーム済み
・現況空室 賃貸募集中:42万円/月額
~周辺インフォメーション~
・フーズマーケットさえき(スーパー)まで 約300m
・ウェルシアまで 約300m
・ローソンまで 約600m
・デニーズまで 約750m
・セブンイレブンまで 約800m
・いなげやまで 約900m
・泉体育館まで 約900m
・立川市役所まで 約1.1km
| 所在地 | 東京都立川市柏町 |
|---|---|
| 交通 |
|
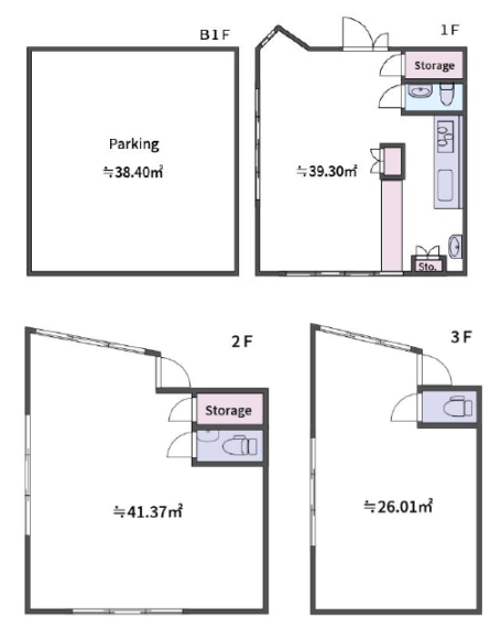
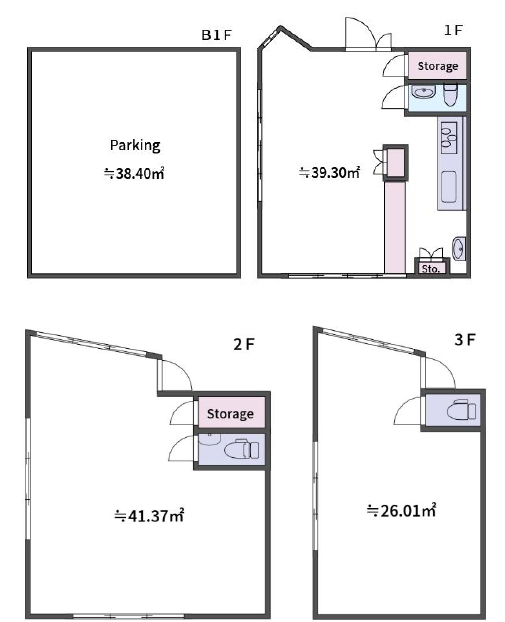
| 築年月 | 1996年8月(築29年8ヶ月) | 建物階数 | 地上3階地下1階 | ||
|---|---|---|---|---|---|
| 建物構造 | |||||
| 延べ床面積 | 145.08m²(43.88坪) | ||||
| 間取内容 | |||||
| 駐車場 | 1台 |
||||
| 引渡/入居時期 | 相談 | 現況 | |||
| 地目 | 宅地 | 用途地域 | 第一種住居 | ||
| 都市計画 | 市街化区域 | 地勢 | 平坦 | ||
| 土地面積 | 66.34m²(20.06坪) | 土地面積計測方式 | 公簿 | ||
| 建ぺい率 | 60% | 容積率 | 200% | ||
| 土地権利 | 所有権 | 接道状況 | 角地 | ||
| 接道種別1 | 公道 | 接道幅員1 | 10m | ||
| 接道方向2 | 西 | 接道間口2 | |||
| 接道種別2 | 公道 | 接道幅員2 | 4m | ||
| 国土法届出 | 不要 | ||||
| 物件番号 | 39210 | ||||
| 情報登録日 | 2026年2月13日 | 情報更新日 | 2026年2月13日 | ||
物件掲載内容と現況に相違がある場合は現況を優先といたします。















