このページを印刷する
- 価格
-
1億4,500万円
■■■アピールポイント■■■■■■
■自己利用可能
■茅場町駅徒歩5分
■2駅3路線利用可
■コンビニ徒歩1分
■■■■■■■■■■■■■■■■■
~周辺インフォメーション~
・ファミリーマート 約15m
・キッチンめめたおる(カフェ・喫茶店) 約90m
・まいばすけっと(スーパー) 約140m
・東京ガン中央クリニック 約210m
・スギ薬局 約400m
~茅場町駅ってこんなところ~
・東京メトロ日比谷線・東西線が通っています
・大手町駅まで約6分、銀座駅まで日比谷線で約6分
・駅徒歩圏内には複数のスーパーマーケットがあるので必要なものが手に入ります
~八丁堀駅ってこんなところ~
・東京メトロ日比谷線とJR京葉線の2路線が通っています
・東京駅から京葉線でわずか1~2分です
・駅周辺はビジネス街の特徴を持ち、多くのオフィスビルが立ち並ぶエリアです
※こちらは検査済証がなく、また物件の建築年月日が不明です。
便宜上数字を入れていますがこちらの数字は正しくありません。
詳細は担当まで
| 所在地 | 東京都中央区新川 |
|---|---|
| 交通 |
|
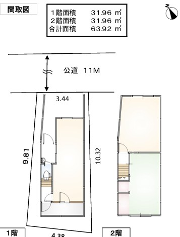
| 築年月 | 1960年1月(築66年3ヶ月) | 建物階数 | 地上2階 | ||
|---|---|---|---|---|---|
| 建物構造 | 木造 | ||||
| 延べ床面積 | 63.92m²(19.33坪) | ||||
| 間取内容 | 店舗・事務所×1戸 |
||||
| 駐車場 | |||||
| 引渡/入居時期 | 相談 | 現況 | 空家 | ||
| 地目 | 宅地 | 用途地域 | 商業 | ||
| 都市計画 | 市街化区域 | 地勢 | 平坦 | ||
| 土地面積 | 39.14m²(11.83坪) | 土地面積計測方式 | 公簿 | ||
| 建ぺい率 | 80% | 容積率 | 500% | ||
| 土地権利 | 所有権 | 接道状況 | 一方 | ||
| 接道種別1 | 公道 | 接道幅員1 | 11m | ||
| 国土法届出 | 不要 | ||||
| 物件番号 | 38907 | ||||
| 情報登録日 | 2026年2月2日 | 情報更新日 | 2026年3月27日 | ||
物件掲載内容と現況に相違がある場合は現況を優先といたします。









