このページを印刷する
- 価格
-
3,600万円
- 満室時表面利回り
- 6.6%
■■■アピールポイント■■■■■■
■角地
■パナホーム施工
■バストイレ別
■東海大学駅 徒歩10分
■■■■■■■■■■■■■■■■■
~周辺インフォメーション~
・おおね公園まで 約180m
・セブンイレブンまで 約280m
・ガストまで 約350m
・ザ・ビック(スーパー)まで 約500m
・生鮮ショップ旬まで 約600m
・ウェルシアまで 約750m
・東海大学まで 約1200m
~東海大学前駅ってこんなところ~
・快速急行、急行なども停車します。
・歩いていける距離に温泉があります。
・大学生の利用が多いだけに、駅周辺には飲食店がとても多く便利です。
~東海大学~
・東海大学のメインキャンパスは湘南キャンパスです。
・約2万人の学生・大学院生が学んでいます。
・湘南キャンパスは、約54万㎡(東京ドーム約12個分)の広さです。
・敷地面積は"東京ドーム15個分" "ディズニーランドとほぼ同じ大きさ"という広大なキャンパス!
・文学部、政治経済学部、法学部、教養学部、 体育学部が在籍しています。
・理学部、情報理工学部、工学部、観光学部が学んでいます
| 所在地 | 神奈川県厚木市鶴巻南 |
|---|---|
| 交通 |
|
| 築年月 | 1988年2月(築38年3ヶ月) | 建物階数 | 地上2階 | ||
|---|---|---|---|---|---|
| 建物構造 | 軽量鉄骨 | ||||
| 延べ床面積 | 143.66m²(43.45坪) | ||||
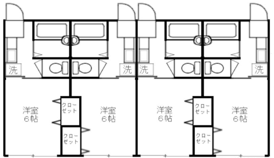
| 間取内容 | 1K×8戸 |
||||
| 駐車場 | |||||
| 引渡/入居時期 | 現況 | ||||
| 地目 | 宅地 | 用途地域 | 第一種低層住居専 | ||
| 都市計画 | 市街化区域 | 地勢 | 平坦 | ||
| 土地面積 | 154.43m²(46.71坪) | 土地面積計測方式 | 公簿 | ||
| 建ぺい率 | 50% | 容積率 | 100% | ||
| 土地権利 | 所有権 | 接道状況 | 角地 | ||
| 接道種別1 | 公道 | 接道幅員1 | 4.2m | ||
| 接道方向2 | 西 | 接道間口2 | |||
| 接道種別2 | 私道 | 接道幅員2 | 4.1m | ||
| 国土法届出 | 不要 | ||||
| 物件番号 | 38888 | ||||
| 情報登録日 | 2026年2月2日 | 情報更新日 | 2026年2月2日 | ||
物件掲載内容と現況に相違がある場合は現況を優先といたします。












