このページを印刷する
- 価格
-
4,980万円
- 満室時表面利回り
- 11.21%
- 現行利回り
- 11.21%
■■■アピールポイント■■■■■■
■満室稼働中
■利回り約11.2%
■2方接道
■スーパー徒歩1分 バス停徒歩3分
■■■■■■■■■■■■■■■■■
~周辺インフォメーション~
・マックスバリュまで 約80m
・パシオス(衣料品店)まで 約120m
・開成町役場まで 約230m
・クリエイトSDまで 約550m
| 所在地 | 神奈川県足柄上郡開成町延沢 |
|---|---|
| 交通 |
|
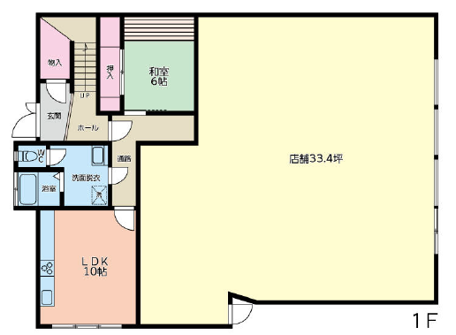
| 築年月 | 1989年12月(築35年11ヶ月) | 建物階数 | 地上2階 | ||
|---|---|---|---|---|---|
| 建物構造 | 鉄骨造 | ||||
| 延べ床面積 | 283.75m²(85.83坪) | ||||
| 間取内容 | 1R×6戸 店舗×1戸 |
||||
| 駐車場 | |||||
| 引渡/入居時期 | 現況 | ||||
| 地目 | 宅地 | 用途地域 | 第一種住居 | ||
| 都市計画 | 地勢 | 平坦 | |||
| 土地面積 | 304.41m²(92.08坪) | 土地面積計測方式 | 公簿 | ||
| 建ぺい率 | 60% | 容積率 | 200% | ||
| 土地権利 | 所有権 | 接道状況 | 二方(除角地) | ||
| 接道種別1 | 公道 | 接道幅員1 | 8.54m | ||
| 接道方向2 | 北東 | 接道間口2 | |||
| 接道種別2 | 公道 | 接道幅員2 | 4.8m | ||
| 国土法届出 | 不要 | ||||
| 物件番号 | 36464 | ||||
| 情報登録日 | 2025年9月30日 | 情報更新日 | 2025年9月30日 | ||
物件掲載内容と現況に相違がある場合は現況を優先といたします。










