このページを印刷する
- 価格
-
1億7,500万円
- 満室時表面利回り
- 4.46%
■■■アピールポイント■■■■■■
■住吉駅 徒歩1分
■錦糸町駅 徒歩11分
■四ツ目通り沿い 視認性良好
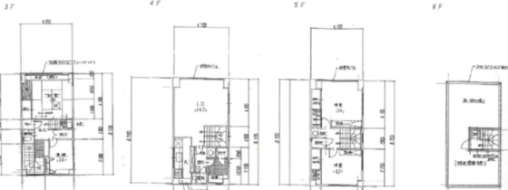
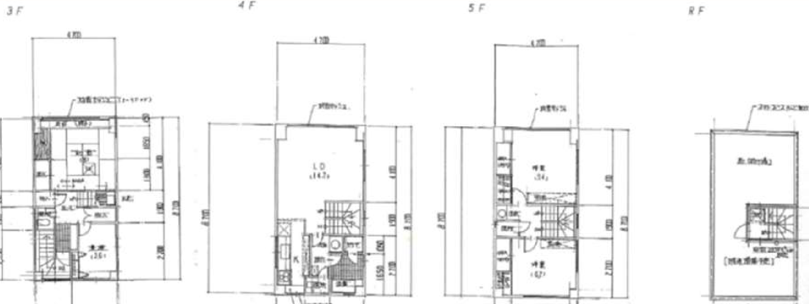
■3~5Fメゾネット住居 空室渡しにつき自己利用可
■■■■■■■■■■■■■■■■■
※上記利回りは居室も貸し出した場合の想定利回りです。
※1.2F賃貸中
※1F部分は元駐車場 現在改装して美容室として利用しております。(用途変更等は別途お問い合わせください)
~周辺インフォメーション~
・セブンイレブンまで 約45m
・ローソンまで 約75m
・まいばすけっとまで 約170m
・モスバーガーまで 約200m
・ドラックパパスまで 約290m
・スギドラックまで 約500m
・オーケーまで 約500m
・肉のハナマサまで 約650m
・毛利保育園まで 約80m
・毛利小学校まで 約80m
・深川第七中学校まで 約170m
・猿江恩賜公園まで 約100m
・あそか病院まで 約300m
~住吉駅ってこんなところ~
・半蔵門線と地下鉄新宿線の2路線利用可
・半蔵門線で1駅、錦糸町へは徒歩でも約12分
・緑豊かな「猿江恩賜公園」あり
・「住吉銀座商店街」あり
~錦糸町駅ってこんなところ~
・JR総武線・中央線・メトロ半蔵門線の3駅利用可
・駅前にはパルコ、マルイをはじめ大型商業施設多数
・大型の公園もあり、子連れも多いエリア
・東京駅まで 約6分
・半蔵門線はスカイツリーラインとの相互乗り入れありで観光にも便利
| 所在地 | 東京都江東区住吉 |
|---|---|
| 交通 |
|
| 築年月 | 1995年9月(築30年7ヶ月) | 建物階数 | 地上5階 | ||
|---|---|---|---|---|---|
| 建物構造 | 鉄骨造 | ||||
| 延べ床面積 | 208.95m²(63.2坪) | ||||
| 間取内容 | |||||
| 駐車場 | |||||
| 引渡/入居時期 | 相談 | 現況 | 賃貸中 | ||
| 地目 | 宅地 | 用途地域 | 商業 | ||
| 都市計画 | 市街化区域 | 地勢 | 平坦 | ||
| 土地面積 | 49.13m²(14.86坪) | 土地面積計測方式 | 公簿 | ||
| 建ぺい率 | 80% | 容積率 | 500% | ||
| 土地権利 | 所有権 | 接道状況 | 一方 | ||
| 接道種別1 | 公道 | 接道幅員1 | 18m | ||
| 国土法届出 | 不要 | ||||
| 物件番号 | 40325 | ||||
| 情報登録日 | 2026年4月25日 | 情報更新日 | 2026年4月25日 | ||
物件掲載内容と現況に相違がある場合は現況を優先といたします。












