このページを印刷する
- 価格
-
1億6,000万円
- 満室時表面利回り
- 5.32%
- 現行利回り
- 5.32%
■■■アピールポイント■■■■■■
■満室稼働中
■ときわ台駅徒歩8分
■オール電化
■1K単身マンション、オーナーチェンジ
■■■■■■■■■■■■■■■■■
~周辺インフォメーション~
・まいばすけっと(スーパー) 約140m
・ローソン 約180m
・常盤台外科病院 約190m
・郵便局 約220m
・バーステイ(衣料品店) 約280m
・スギドラッグ 約450m
~ときわ台駅ってこんなところ~
・東武東上線が通っています
・池袋まで乗換なしで約15分まであります
・周辺住民の世代層も幅広いので若い方も多くいます
※こちらの物件は用途地域が2つに跨っています
準工業地域 60/200
近隣商業地域 80/200
詳細は担当まで
| 所在地 | 東京都板橋区前野町 |
|---|---|
| 交通 |
|
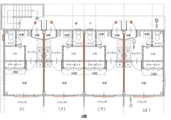
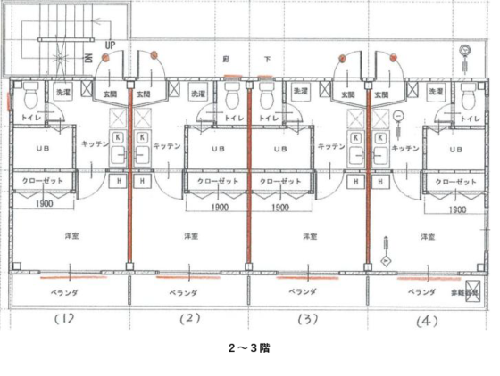
| 築年月 | 2004年2月(築22年1ヶ月) | 建物階数 | 地上3階 | ||
|---|---|---|---|---|---|
| 建物構造 | 鉄骨造 | ||||
| 延べ床面積 | 224.4m²(67.88坪) | ||||
| 間取内容 | 1K×12戸 |
||||
| 駐車場 | |||||
| 引渡/入居時期 | 相談 | 現況 | 賃貸中 | ||
| 地目 | 宅地 | 用途地域 | 第一種住居 | ||
| 建ぺい率 | 60% | 容積率 | 200% | ||
| 土地権利 | 接道状況 | 一方 | |||
| 接道種別1 | 公道 | 接道幅員1 | 5m | ||
| 国土法届出 | 不要 | ||||
| 物件番号 | 39649 | ||||
| 情報登録日 | 2026年3月23日 | 情報更新日 | 2026年3月23日 | ||
物件掲載内容と現況に相違がある場合は現況を優先といたします。















