このページを印刷する
- 価格
-
5億5,000万円
- 満室時表面利回り
- 5.23%
- 現行利回り
- 5.23%
■■■アピールポイント■■■■■■
■オーナーチェンジ
■井荻駅徒歩9分
■3台分の駐車スペース有
■エレベーター有
■■■■■■■■■■■■■■■■■
~周辺インフォメーション~
・セブンイレブン 約110m
・オーケー(スーパー) 約120m
・ジョナサン 約200m
・スギドラッグ 約230m
・杉並区立柿木図書館 約350m
・諸岡クリニック 約500m
・郵便局 約850m
~井荻駅ってこんなところ~
・西武新宿線の各駅停車のみが停車します
・高田馬場駅で乗換1回、西武新宿駅まで約19分です
・駅前にはバスターミナルが整備されており移動手段が豊富です
| 所在地 | 東京都杉並区清水 |
|---|---|
| 交通 |
|
| 築年月 | 1995年4月(築30年10ヶ月) | 建物階数 | 地上5階 | ||
|---|---|---|---|---|---|
| 建物構造 | SRC | ||||
| 延べ床面積 | 1116.24m²(337.66坪) | ||||
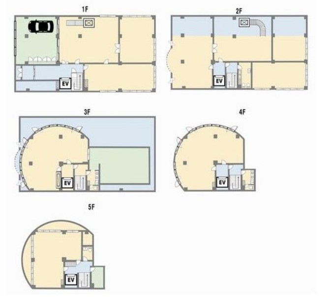
| 間取内容 | 店舗・事務所×5戸 駐車場3台 |
||||
| 駐車場 | 有 |
||||
| 引渡/入居時期 | 相談 | 現況 | 賃貸中 | ||
| 地目 | 宅地 | 用途地域 | 近隣商業 | ||
| 都市計画 | 市街化区域 | 地勢 | 平坦 | ||
| 土地面積 | 423.39m²(128.07坪) | 土地面積計測方式 | 公簿 | ||
| 建ぺい率 | 80% | 容積率 | 300% | ||
| 土地権利 | 所有権 | 接道状況 | 一方 | ||
| 接道種別1 | 公道 | 接道幅員1 | 33m | ||
| 国土法届出 | 不要 | ||||
| 物件番号 | 38857 | ||||
| 情報登録日 | 2026年1月31日 | 情報更新日 | 2026年1月31日 | ||
物件掲載内容と現況に相違がある場合は現況を優先といたします。







