このページを印刷する
- 価格
-
6,800万円
- 満室時表面利回り
- 11.12%
■■■アピールポイント■■■■■■
■満室時利回り約11.12%
■亀戸駅 徒歩8分
■2方接道
■2017年 2F全室リフォーム済み
■■■■■■■■■■■■■■■■■
※本物件は借地権です。
借地権種類:普通賃貸借
期間:建物売買契約より新規20年の契約締結可能
地代:40,360円/月
承諾料等:別途お問い合わせください
※現況2部屋募集中
~周辺インフォメーション~
・亀戸市場(スーパー)まで 約140m
・ジョナサンまで 約220m
・マックスバリュ(スーパー)まで 約240m
・肉のハナマサまで 約280m
・ファミリーマートまで 約300m
・ローソンまで 約300m
・セブンイレブンまで 約350m
・マツモトキヨシまで 約350m
・アトレ亀戸(ショッピングモール)まで 約350m
~亀戸駅ってこんなところ~
・2路線利用可能。JR総武線と東武亀戸線が通っている。
・秋葉原までは乗換なしで約10分。新宿駅までは乗換なしで約29分。
・マックスバリュエクスプレスは23時まで営業している大きいスーパーです。
・駅付近にある「肉のハナマサ」は24時間営業で帰宅時便利。
・亀戸中央商店街は、こいのぼり祭りや福引などイベントがあり活気のある商店街。
| 所在地 | 東京都江東区亀戸 |
|---|---|
| 交通 |
|
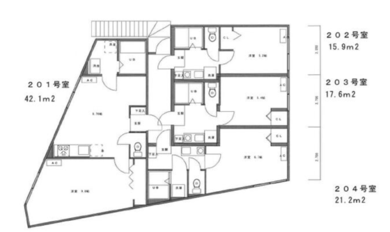
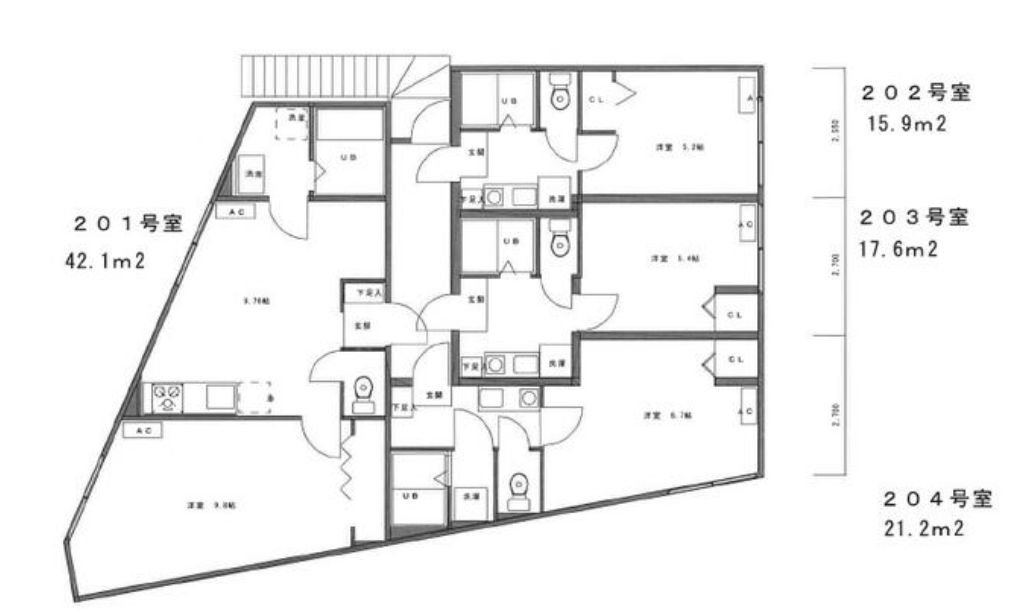
| 築年月 | 1951年1月(築75年4ヶ月) | 建物階数 | 地上2階 | ||
|---|---|---|---|---|---|
| 建物構造 | その他 | ||||
| 延べ床面積 | 205.98m²(62.3坪) | ||||
| 間取内容 | 店舗・倉庫×1 1LDK×1戸 1K×3戸 |
||||
| 駐車場 | |||||
| 引渡/入居時期 | 現況 | ||||
| 地目 | 宅地 | 用途地域 | 第一種住居 | ||
| 都市計画 | 市街化区域 | 地勢 | 平坦 | ||
| 土地面積 | 133.43m²(40.36坪) | 土地面積計測方式 | 公簿 | ||
| 建ぺい率 | 60% | 容積率 | 220% | ||
| 土地権利 | 普通賃借 | 接道状況 | 角地 | ||
| 接道種別1 | 公道 | 接道幅員1 | 5.5m | ||
| 接道方向2 | 南 | 接道間口2 | |||
| 接道種別2 | 私道 | 接道幅員2 | 3.3m | ||
| 国土法届出 | 不要 | ||||
| 物件番号 | 38693 | ||||
| 情報登録日 | 2026年1月23日 | 情報更新日 | 2026年1月23日 | ||
物件掲載内容と現況に相違がある場合は現況を優先といたします。














