このページを印刷する
- 価格
-
1億1,800万円
- 満室時表面利回り
- 6.12%
- 現行利回り
- 6.12%
■■■アピールポイント■■■■■■
■満室稼働中
■朝霞駅2分
■角地
■■■■■■■■■■■■■■■■■
~周辺インフォメーション~
・業務スーパーまで 約190m
・セブンイレブンまで 約170m
・トモズ(ドラックストア)まで 約170m
・デニーズまで 約230m
~朝霞駅ってこんなところ~
・駅前の再開発により街灯が増えて夜道も明るく安心の町
・本物件側駅出口まえに交番もあって女性でも安心の立地
・駅付近には24時間スーパーもあり便利
・駅ナカに甘味、パン屋さん、お総菜屋さんもあって一人暮らしにも便利
・地下鉄副都心線、有楽町線乗り入れで渋谷、新宿、飯田橋、豊洲にも乗り換えなし
| 所在地 | 埼玉県朝霞市本町 |
|---|---|
| 交通 |
|
| 築年月 | 1987年3月(築38年11ヶ月) | 建物階数 | 地上3階地下1階 | ||
|---|---|---|---|---|---|
| 建物構造 | 鉄骨造 | ||||
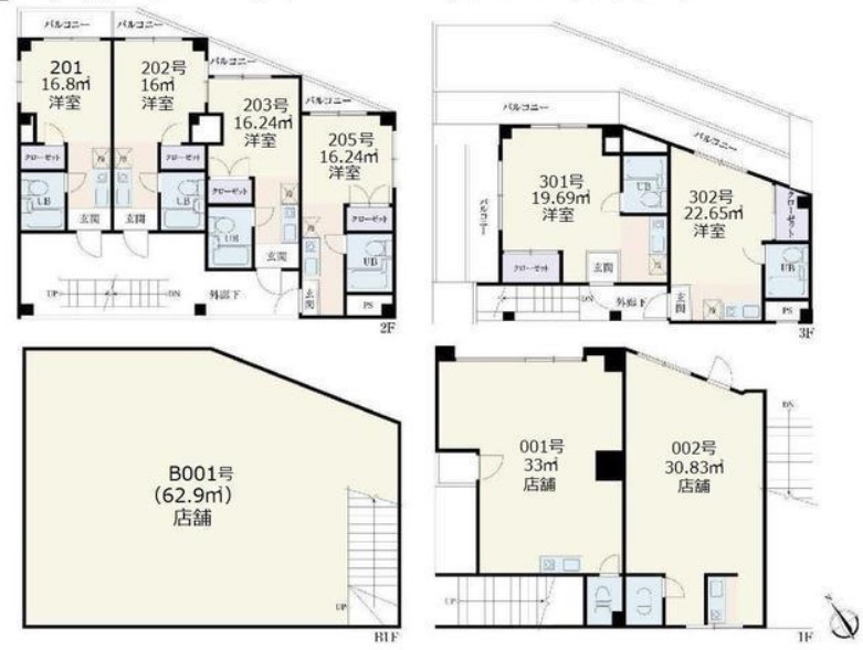
| 延べ床面積 | 300.76m²(90.97坪) | ||||
| 間取内容 | 1K×4戸 1R×2戸 店舗×3戸 |
||||
| 駐車場 | |||||
| 引渡/入居時期 | 現況 | ||||
| 地目 | 宅地 | 用途地域 | 商業 | ||
| 都市計画 | 市街化区域 | 地勢 | |||
| 土地面積 | 124.23m²(37.57坪) | 土地面積計測方式 | 公簿 | ||
| 建ぺい率 | 80% | 容積率 | 240% | ||
| 土地権利 | 所有権 | 接道状況 | 角地 | ||
| 接道種別1 | 公道 | 接道幅員1 | 4m | ||
| 接道方向2 | 北西 | 接道間口2 | |||
| 接道種別2 | 公道 | 接道幅員2 | 4m | ||
| 国土法届出 | 不要 | ||||
| 物件番号 | 38323 | ||||
| 情報登録日 | 2025年12月23日 | 情報更新日 | 2025年12月23日 | ||
物件掲載内容と現況に相違がある場合は現況を優先といたします。














