このページを印刷する
- 価格
-
1億2,000万円
■■■アピールポイント■■■■■■
■自己利用可
■3駅4路線利用可
■人形町駅徒歩5分
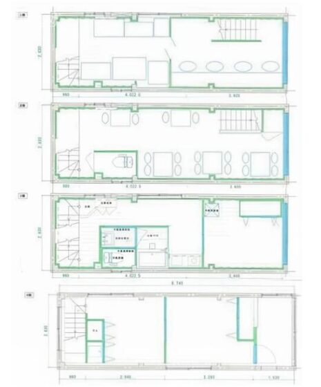
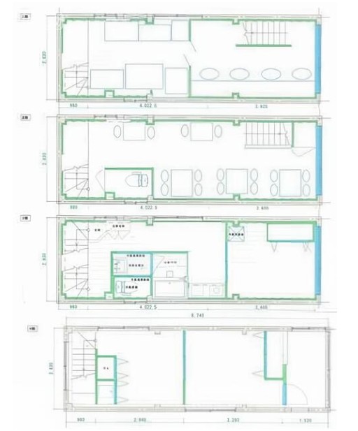
■1~2階:飲食店 3~4階:住居
■■■■■■■■■■■■■■■■■
~周辺インフォメーション~
・日本橋かきがら町クリニック 約70m
・ローソン 約80m
・カフェ花梨 約150m
・まいばすけっと(スーパー) 約150m
・郵便局 約180m
・バーミヤン(中華料理店) 約280m
・三井住友銀行 約600m
~人形町駅ってこんなところ~
・東京メトロ日比谷線と都営浅草線が通っています
・乗換なしで銀座駅まで約6分、霞が関駅まで約8分
・都営浅草線は京急線と直通運転があり、羽田や成田への移動が楽です
~茅場町駅ってこんなところ~
・東京メトロ東西線と東京メトロ日比谷線が通っています
・乗換なしで東京駅まで約9分です
・東京証券取引所に近い金融街として知られています
~水天宮前駅ってこんなところ~
・東京メトロ半蔵門線が通っています
・乗換なしで大手町駅まで約7分です
・人形町駅までは徒歩6-8分、浜町駅(都営新宿線)までは徒歩10分程度です。
| 所在地 | 東京都中央区日本橋蛎殻町 |
|---|---|
| 交通 |
|
| 築年月 | 1964年5月(築61年11ヶ月) | 建物階数 | 地上4階 | ||
|---|---|---|---|---|---|
| 建物構造 | ブロック | ||||
| 延べ床面積 | 94.28m²(28.51坪) | ||||
| 間取内容 | 3LDK以上×1戸 店舗×1戸 |
||||
| 駐車場 | |||||
| 引渡/入居時期 | 相談 | 現況 | 賃貸中 | ||
| 地目 | 宅地 | 用途地域 | 商業 | ||
| 都市計画 | 市街化区域 | 地勢 | 平坦 | ||
| 土地面積 | 29.58m²(8.94坪) | 土地面積計測方式 | 公簿 | ||
| 建ぺい率 | 80% | 容積率 | 600% | ||
| 土地権利 | 所有権 | 接道状況 | 一方 | ||
| 接道種別1 | 公道 | 接道幅員1 | 4m | ||
| 国土法届出 | 不要 | ||||
| 物件番号 | 37535 | ||||
| 情報登録日 | 2025年11月18日 | 情報更新日 | 2025年11月18日 | ||
物件掲載内容と現況に相違がある場合は現況を優先といたします。














