このページを印刷する
- 価格
-
2億9,000万円
- 満室時表面利回り
- 5.17%
■■■アピールポイント■■■■■■
■高稼働賃貸中
■ファミリータイプ
■RCマンション+戸建て 2棟一括売買
■3駅利用可
■■■■■■■■■■■■■■■■■
~マンション~
構造:RC造 4階建て
築年:1989年5月
戸数:11戸(11戸中9戸稼働中 うち1部屋自己利用)
延床面積:423.16㎡
~戸建て~
構造:木造2階建て
築年:1989年5月築
戸数:1戸(賃貸中)
延床面積:101.02㎡
※2015年頃リフォーム済み
~周辺インフォメーション~
・東京シティ信用金庫まで 約140m
・セブンイレブンまで 約170m
・まいばすけっとまで 約180m
・ドン・キホーテまで 約400m
・ビック・エーまで 約550m
~北池袋駅ってこんなところ~
・池袋駅から1駅でアクセス良好です!
・JR埼京線板橋駅も徒歩圏内です。
・図書館や公園が近隣にあり、ファミリーが住みやすい環境です。
・駅周辺は閑静な雰囲気で生活がしやすいです。
~下板橋駅ってこんなところ~
・池袋駅まで3分!都心へのアクセスが良好です。
・埼京線の板橋駅が徒歩圏内にあります。
・駅前に大手スーパーがあるので会社帰りに寄れます
・南側は昔ながらの商店街があります。
~板橋駅ってこんなところ~
・新宿、渋谷、池袋に15分かからずさらに乗り換えなしで行けます。
・買い物施設がとても充実しています。
・西口にある「マルエツ」は、店舗が大きいうえに深夜25:30まで営業しており便利です。
・商店街が4つもあり下町の雰囲気を楽しみながら買い物が出来ます。
| 所在地 | 東京都豊島区池袋本町 |
|---|---|
| 交通 |
|
| 築年月 | 1989年5月(築36年10ヶ月) | 建物階数 | 地上4階 | ||
|---|---|---|---|---|---|
| 建物構造 | RC | ||||
| 延べ床面積 | 423.16m²(128坪) | ||||
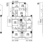
| 間取内容 | 2DK×8戸 1DK×3戸 3LDK×1戸 |
||||
| 駐車場 | 駐車場1台 |
||||
| 引渡/入居時期 | 現況 | ||||
| 地目 | 宅地 | 用途地域 | 準工業 | ||
| 都市計画 | 市街化区域 | 地勢 | 平坦 | ||
| 土地面積 | 293.66m²(88.83坪) | 土地面積計測方式 | 公簿 | ||
| 建ぺい率 | 60% | 容積率 | 252% | ||
| 土地権利 | 所有権 | 接道状況 | 一方 | ||
| 接道種別1 | 公道 | 接道幅員1 | 4.2m | ||
| 国土法届出 | 不要 | ||||
| 物件番号 | 37512 | ||||
| 情報登録日 | 2025年11月18日 | 情報更新日 | 2025年11月18日 | ||
物件掲載内容と現況に相違がある場合は現況を優先といたします。















