このページを印刷する
- 価格
-
2億8,790万円
- 満室時表面利回り
- 8.1%
- 現行利回り
- 8.1%
■■■アピールポイント■■■■■■
■満室稼働中 利回り約8.1%
■駐車場11台
■角地
■3駅2路線利用可
■■■■■■■■■■■■■■■■■
~周辺インフォメーション~
・コーナンPRO(ホームセンター)まで 約300m
・郵便局まで 約550m
・セブンイレブンまで 約550m
・マツモトキヨシまで 約750m
・ベルク(スーパー)まで 約800m
~越谷駅ってこんなところ~
・北千住駅まで 約17分
・越谷市役所最寄り駅
・駅前に大型商業施設「ALCo越谷ショッピングスクエア」や「越谷ツインシティ」あり
・車で15分の位置に「イオンレイクタウン」あり
・半蔵門線、日比谷線に直通運転あり
| 所在地 | 埼玉県越谷市瓦曾根 |
|---|---|
| 交通 |
|
| 築年月 | 1981年4月(築44年8ヶ月) | 建物階数 | 地上4階 | ||
|---|---|---|---|---|---|
| 建物構造 | RC | ||||
| 延べ床面積 | 1179.43m²(356.77坪) | ||||
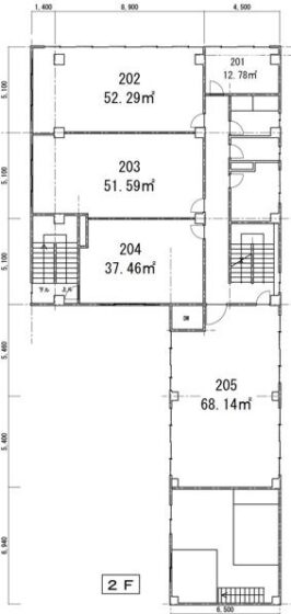
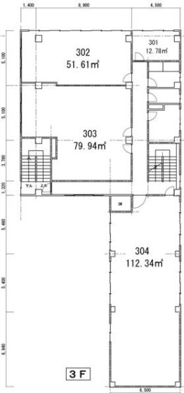
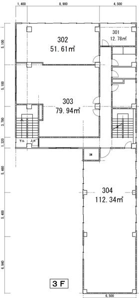
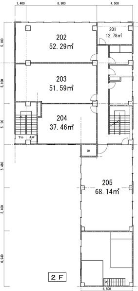
| 間取内容 | 取り 店舗・事務所×14戸 |
||||
| 駐車場 | 駐車場11台 |
||||
| 引渡/入居時期 | 現況 | ||||
| 地目 | 宅地 | 用途地域 | 第二種住居 | ||
| 都市計画 | 市街化区域 | 地勢 | 平坦 | ||
| 土地面積 | 681.67m²(206.2坪) | 土地面積計測方式 | 公簿 | ||
| 建ぺい率 | 60% | 容積率 | 200% | ||
| 土地権利 | 所有権 | 接道状況 | |||
| 接道種別1 | 公道 | 接道幅員1 | 4.1m | ||
| 接道方向2 | 西 | 接道間口2 | |||
| 接道種別2 | 公道 | 接道幅員2 | 16.4m | ||
| 国土法届出 | 不要 | ||||
| 物件番号 | 37491 | ||||
| 情報登録日 | 2025年11月17日 | 情報更新日 | 2025年11月17日 | ||
物件掲載内容と現況に相違がある場合は現況を優先といたします。













