このページを印刷する
- 価格
-
5億9,900万円
- 満室時表面利回り
- 7.59%
- 現行利回り
- 7.59%
■■■アピールポイント■■■■■■
■京成小岩駅 徒歩1分
■満室稼働中 利回り約7%
■令和1年~令和5年 大規模修繕
■検査済証有 オートロックあり SRC造
■■■■■■■■■■■■■■■■■
~修繕履歴~
令和1年 一部部屋リフォーム
令和2年 屋上防水 階段メンテナンス
バルコニー等メンテナンス
外装塗装修繕
令和3年 一部部屋リフォーム
令和5年 一部部屋リフォーム
~周辺インフォメーション~
・セブンイレブンまで 約30m
・グルメシティまで 約90m
・ファミリーマートまで 約140m
・ダイソーまで 約400m
・くすりの福太郎まで 約400m
~京成小岩駅ってこんなところ~
・京成上野駅までは乗り換えなしで約30分
・日暮里駅でJR山手線へ乗り換えると東京駅までは40分です
・駅周辺には都営バスや江戸川区のコミュニティバスが運行している
| 所在地 | 東京都江戸川区北小岩 |
|---|---|
| 交通 |
|
| 築年月 | 1980年6月(築45年10ヶ月) | 建物階数 | 地上7階 | ||
|---|---|---|---|---|---|
| 建物構造 | SRC | ||||
| 延べ床面積 | 1436.80m²(434.63坪) | ||||
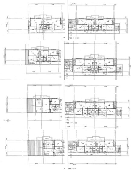
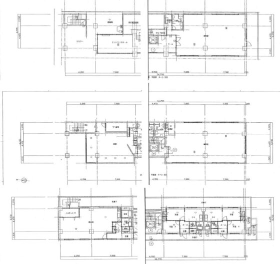
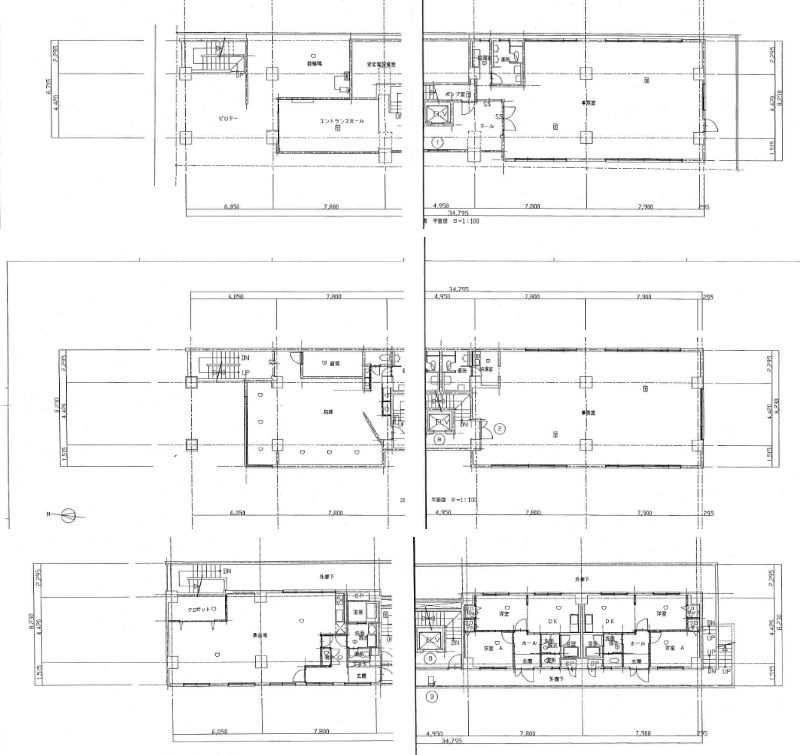
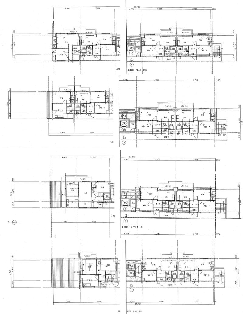
| 間取内容 | 1LDK 2LDK×16戸 1.2F店舗事務所×4区画 |
||||
| 駐車場 | |||||
| 引渡/入居時期 | 現況 | ||||
| 地目 | 宅地 | 用途地域 | 商業 | ||
| 都市計画 | 市街化区域 | 地勢 | 平坦 | ||
| 土地面積 | 345.90m²(104.63坪) | 土地面積計測方式 | 公簿 | ||
| 建ぺい率 | 80% | 容積率 | 400% | ||
| 土地権利 | 所有権 | 接道状況 | 一方 | ||
| 接道種別1 | 公道 | 接道幅員1 | 8m | ||
| 国土法届出 | 不要 | ||||
| 物件番号 | 37348 | ||||
| 情報登録日 | 2025年11月13日 | 情報更新日 | 2026年3月17日 | ||
物件掲載内容と現況に相違がある場合は現況を優先といたします。














