このページを印刷する
- 価格
-
2億5,840万円
- 満室時表面利回り
- 4.5%
■■■アピールポイント■■■■■■
■11/12戸稼働中
■RC造
■2025年築
■西新井駅 徒歩6分
■■■■■■■■■■■■■■■■■
~周辺インフォメーション~
・ローソンまで 約120m
・セブンイレブンまで 約300m
・ファミリーマートまで 約400m
・イオンまで 約450m
・サンドラックまで 約500m
・マミーマートまで 約600m
・どらっくぱぱすまで 約600m
・西友まで 約800m
~西新井駅ってこんなところ~
・急行停車駅 北千住駅まで 1駅4分
・再開発されて買い物が便利になった町
・駅前に大型イオン、パサーシオ、アリオなどの大型商業施設あり
・バス便多数 北千住行バス等あり
・環七、国道4号線が通っており、車移動も便利
| 所在地 | 東京都足立区栗原 |
|---|---|
| 交通 |
|
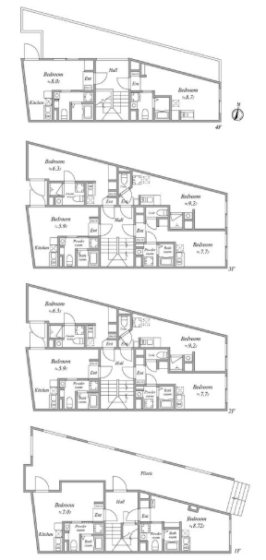
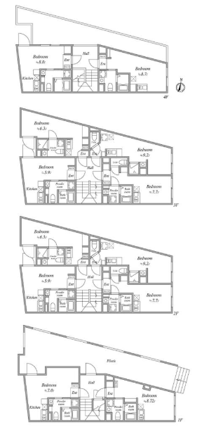
| 築年月 | 2025年2月(築11ヶ月) | 建物階数 | 地上3階地下1階 | ||
|---|---|---|---|---|---|
| 建物構造 | RC | ||||
| 延べ床面積 | 255.74m²(77.36坪) | ||||
| 間取内容 | 1R×12戸 |
||||
| 駐車場 | |||||
| 引渡/入居時期 | 現況 | ||||
| 地目 | 宅地 | 用途地域 | 近隣商業 | ||
| 都市計画 | 市街化区域 | 地勢 | 平坦 | ||
| 土地面積 | 114.29m²(34.57坪) | 土地面積計測方式 | 公簿 | ||
| 建ぺい率 | 80% | 容積率 | 300% | ||
| 土地権利 | 所有権 | 接道状況 | 一方 | ||
| 接道種別1 | 公道 | 接道幅員1 | 5m | ||
| 国土法届出 | 不要 | ||||
| 物件番号 | 37336 | ||||
| 情報登録日 | 2025年11月13日 | 情報更新日 | 2025年11月13日 | ||
物件掲載内容と現況に相違がある場合は現況を優先といたします。














