このページを印刷する
- 価格
-
3億9,800万円
- 満室時表面利回り
- 3.9%
■■■アピールポイント■■■■■■
■新築1棟マンションです
■R8年3月築予定
■荻窪駅徒歩9分
■3路線利用可
■■■■■■■■■■■■■■■■■
※パース写真等はイメージ図です
~周辺インフォメーション~
・本むら庵(蕎麦屋) 約110m
・ローソン 約170m
・河合内科クリニック 約270m
・ミニコープ(スーパー) 約550m
・ココカラファイン(ドラッグストア) 約650m
・郵便局 約800m
~荻窪駅ってこんなところ~
・JR中央線・総武線と東京メトロ丸ノ内線が利用出来ます
・東京メトロ丸ノ内線の始発駅なのでゆったり移動出来ます
・新宿駅まで約14分、東京駅まで約29分でアクセス良好です
・ルミネや荻窪タウンセブンが駅に直結しています
| 所在地 | 東京都杉並区上荻 |
|---|---|
| 交通 |
|
| 築年月 | 2026年3月 | 建物階数 | 地上3階地下1階 | ||
|---|---|---|---|---|---|
| 建物構造 | RC | ||||
| 延べ床面積 | 223.1m²(67.48坪) | ||||
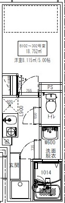
| 間取内容 | 1K×12戸 |
||||
| 駐車場 | |||||
| 引渡/入居時期 | 相談 | 現況 | 未完成 | ||
| 地目 | 宅地 | 用途地域 | 第二種中高層住居専用 | ||
| 都市計画 | 市街化区域 | 地勢 | 平坦 | ||
| 土地面積 | 95.67m²(28.94坪) | 土地面積計測方式 | 公簿 | ||
| 建ぺい率 | 60% | 容積率 | 200% | ||
| 土地権利 | 所有権 | 接道状況 | 一方 | ||
| 接道種別1 | 公道 | 接道幅員1 | 7.2m | ||
| 国土法届出 | 不要 | ||||
| 物件番号 | 37239 | ||||
| 情報登録日 | 2025年11月3日 | 情報更新日 | 2025年11月3日 | ||
物件掲載内容と現況に相違がある場合は現況を優先といたします。















