このページを印刷する
- 価格
-
6,200万円
- 満室時表面利回り
- 5.84%
- 現行利回り
- 5.84%
■■■アピールポイント■■■■■■
■満室稼働中
■我孫子駅徒歩10分
■2棟一括
■駐車場2台分あり
■複数路線利用可能
■■■■■■■■■■■■■■■■■
~周辺インフォメーション~
・イトーヨーカドー 約290m
・丸亀製麺 約400m
・スターバックスコーヒー 約450m
・マツモトキヨシ 約500m
・京葉銀行 約700m
・郵便局 約700m
・医療法人緑生会 あびこクリニック 約700m
~我孫子駅ってこんなところ~
・JR千代田・常磐緩行線・JR常磐線・JR成田線が走っています
・西船橋駅までは約33分、上野駅までは約33分です
・スーパーが複数あり、大型商業施設もあるので買い物に困らないです
| 所在地 | 千葉県我孫子市我孫子 |
|---|---|
| 交通 |
|
| 築年月 | 2019年8月(築6年4ヶ月) | 建物階数 | 地上2階 | ||
|---|---|---|---|---|---|
| 建物構造 | 木造 | ||||
| 延べ床面積 | 178.06m²(53.86坪) | ||||
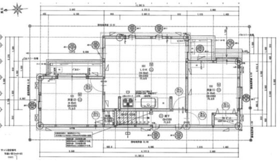
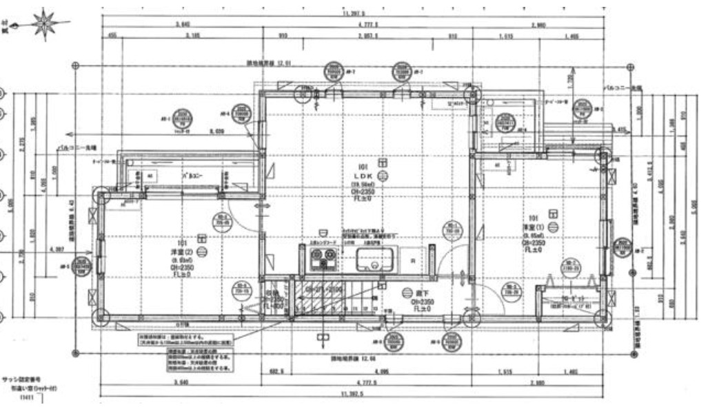
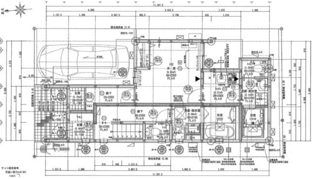
| 間取内容 | 2LDK×2戸 1K×2戸 |
||||
| 駐車場 | 有 |
||||
| 引渡/入居時期 | 即時 | 現況 | 賃貸中 | ||
| 地目 | 宅地 | 用途地域 | 第一種住居 | ||
| 都市計画 | 市街化区域 | 地勢 | 平坦 | ||
| 土地面積 | 163.23m²(49.37坪) | 土地面積計測方式 | 公簿 | ||
| 建ぺい率 | 60% | 容積率 | 200% | ||
| 土地権利 | 所有権 | 接道状況 | 一方 | ||
| 接道種別1 | 公道 | 接道幅員1 | 4m | ||
| 国土法届出 | 不要 | ||||
| 物件番号 | 37004 | ||||
| 情報登録日 | 2025年10月18日 | 情報更新日 | 2025年10月18日 | ||
物件掲載内容と現況に相違がある場合は現況を優先といたします。















