このページを印刷する
- 価格
-
2,980万円
■■■アピールポイント■■■■■■
■空室渡し 自己利用可
■大通り沿い
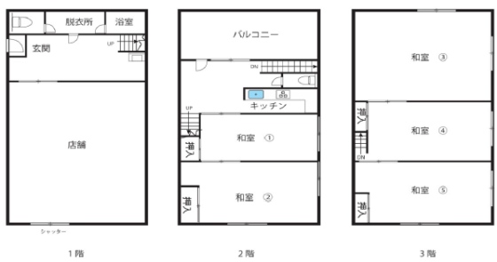
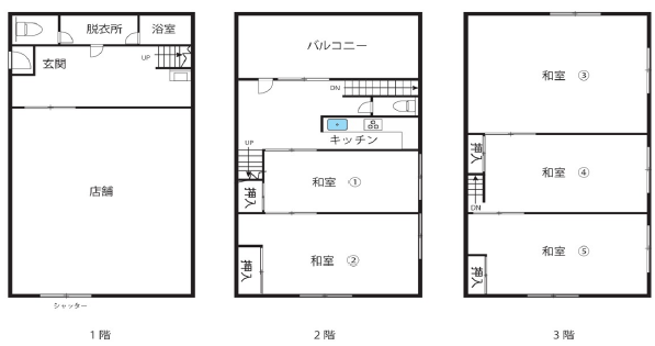
■5K+店舗
■スーパー徒歩2分
■■■■■■■■■■■■■■■■■
~周辺インフォメーション~
・グルメシティまで 約160m
・ファミリーマートまで 約300m
・セブンイレブンまで 約450m
・ツルハドラックまで 約500m
・千葉大学まで 約600m
~千葉大学亥鼻キャンパスについて~
・国立大学
・医学部、薬学部、看護学部、医学部付属病院あり
・上記学部全学生数 約1500人
~千葉中央駅ってこんなところ~
・京成電鉄千葉線の終点駅
・県庁前駅へも徒歩圏内
・JR千葉駅に近いので、徒歩圏に商業施設が充実している
・西側に300mほど行けば閑静な住宅街がある
※雨漏りは現況での売買となります
1Fの雨漏りは2Fバルコニー清掃で解消される可能性あり
| 所在地 | 千葉県千葉市中央区中央 |
|---|---|
| 交通 |
|
| 築年月 | 1979年12月(築46年4ヶ月) | 建物階数 | 地上3階 | ||
|---|---|---|---|---|---|
| 建物構造 | 鉄骨造 | ||||
| 延べ床面積 | 137.3m²(41.53坪) | ||||
| 間取内容 | 店舗×1戸 5K×1区画 |
||||
| 駐車場 | |||||
| 引渡/入居時期 | 現況 | ||||
| 地目 | 宅地 | 用途地域 | 商業 | ||
| 都市計画 | 市街化区域 | 地勢 | 平坦 | ||
| 土地面積 | 71.44m²(21.61坪) | 土地面積計測方式 | 公簿 | ||
| 建ぺい率 | 80% | 容積率 | 400% | ||
| 土地権利 | 所有権 | 接道状況 | 一方 | ||
| 接道種別1 | 公道 | 接道幅員1 | 16m | ||
| 国土法届出 | 不要 | ||||
| 物件番号 | 36655 | ||||
| 情報登録日 | 2025年10月6日 | 情報更新日 | 2025年12月22日 | ||
物件掲載内容と現況に相違がある場合は現況を優先といたします。















