このページを印刷する
- 価格
-
7,880万円
■■■アピールポイント■■■■■■
■関内駅徒歩5分 桜木町駅徒歩5分
■吉田町通り沿い
■商業地域
■■■■■■■■■■■■■■■■■
※本物件は現在店舗運営中の為、内見等は事前予約をお願いしております。
詳しくは担当までご連絡ください。
~周辺インフォメーション~
・ローソンまで 約40m
・ミニストップまで 約80m
・福富町西公園まで 約90m
・カトレヤプラザ(ショッピングモール)まで 約260m
※スーパー・100均・飲食店・衣料品店等
・横浜銀行まで 約260m
・三井住友銀行まで 約300m
・郵便局まで 約350m
・りそな銀行まで 約400m
~関内駅ってこんなところ~
・商業施設が充実していて買い物に便利
・3路線使えて交通アクセスが良い
・横浜中華街など有名な観光地まで歩いて行ける
| 所在地 | 神奈川県横浜市中区吉田町 |
|---|---|
| 交通 |
|
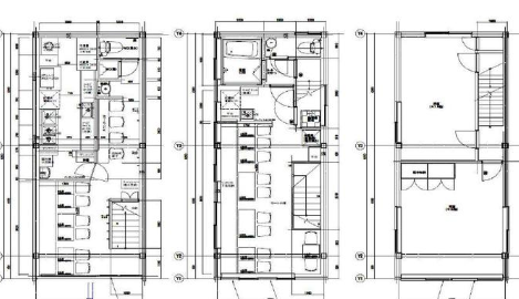
| 築年月 | 1977年9月(築48年4ヶ月) | 建物階数 | 地上3階 | ||
|---|---|---|---|---|---|
| 建物構造 | 鉄骨造 | ||||
| 延べ床面積 | 96.6m²(29.22坪) | ||||
| 間取内容 | |||||
| 駐車場 | |||||
| 引渡/入居時期 | 現況 | ||||
| 地目 | 宅地 | 用途地域 | 商業 | ||
| 都市計画 | 市街化区域 | 地勢 | 平坦 | ||
| 土地面積 | 40.6m²(12.28坪) | 土地面積計測方式 | 公簿 | ||
| 建ぺい率 | 80% | 容積率 | 800% | ||
| 土地権利 | 所有権 | 接道状況 | 一方 | ||
| 接道種別1 | 公道 | 接道幅員1 | 16m | ||
| 国土法届出 | 不要 | ||||
| 物件番号 | 35871 | ||||
| 情報登録日 | 2025年9月12日 | 情報更新日 | 2025年9月12日 | ||
物件掲載内容と現況に相違がある場合は現況を優先といたします。






