このページを印刷する
- 価格
-
5,500万円
■■■アピールポイント■■■■■■
■空室 自己利用可
■2方向接道
■土地面積751.85㎡
■■■■■■■■■■■■■■■■■
~周辺インフォメーション~
・セブンイレブンまで 約210m
・ウェルシアまで 約500m
・ジェーソンまで 約650m
・ベルクまで 約700m
・マツモトキヨシまで 約750m
~本庄駅ってこんなところ~
・熊谷駅まで 約21分
・駅近隣にショッピングセンター「アピタ本庄店」あり
・ショッピングモール「ビバモール本庄店」あり
・駅の北口・南口それぞれにロータリーあり、車でのお迎えも便利
| 所在地 | 埼玉県本庄市東台 |
|---|---|
| 交通 |
|
| 築年月 | 1984年4月(築42年) | 建物階数 | 地上4階 | ||
|---|---|---|---|---|---|
| 建物構造 | 鉄骨造 | ||||
| 延べ床面積 | 683.14m²(206.64坪) | ||||
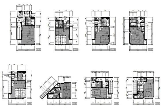
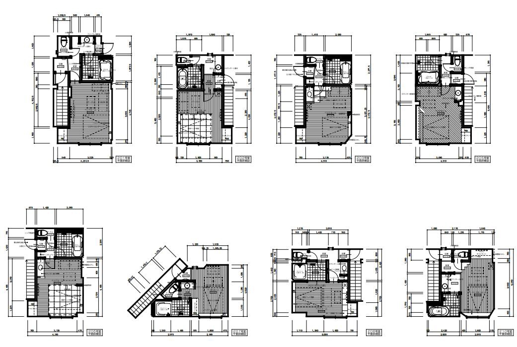
| 間取内容 | |||||
| 駐車場 | 駐車場あり |
||||
| 引渡/入居時期 | 現況 | ||||
| 地目 | 宅地 | 用途地域 | 第二種住居 | ||
| 都市計画 | 市街化区域 | 地勢 | 平坦 | ||
| 土地面積 | 751.85m²(227.43坪) | 土地面積計測方式 | 公簿 | ||
| 建ぺい率 | 60% | 容積率 | 200% | ||
| 土地権利 | 所有権 | 接道状況 | 角地 | ||
| 接道種別1 | 公道 | 接道幅員1 | 6.5m | ||
| 接道方向2 | 北東 | 接道間口2 | |||
| 接道種別2 | 公道 | 接道幅員2 | 6m | ||
| 国土法届出 | 不要 | ||||
| 物件番号 | 35682 | ||||
| 情報登録日 | 2025年9月6日 | 情報更新日 | 2025年9月6日 | ||
物件掲載内容と現況に相違がある場合は現況を優先といたします。









