このページを印刷する
- 価格
-
2,780万円
■■■アピールポイント■■■■■■
■自己利用可能
■日当たり良好
■駐車場有
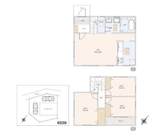
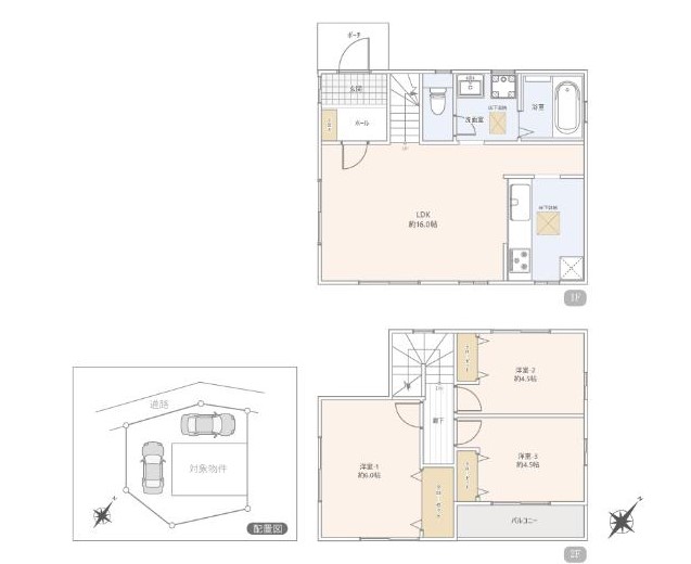
■約16帖のLDK
■■■■■■■■■■■■■■■■■
~周辺インフォメーション~
・ローソン 約500m
・横須賀天ぷら 天庵(湘南EAST HARBOR ) 約550m
・郵便局 約700m
・石渡正次商店(スーパー) 約700m
・MaNo e MaNo(イタリア料理) 約750m
・衣笠愛児園 約950m
~衣笠駅ってこんなところ~
・JR横須賀線の駅です。
・横浜駅まで約48分です。
・2つの商店街からなり全長約250mのアーケードが続く「衣笠商店街」があります。
・「衣笠山公園」は、桜樹2,000本が咲き誇る桜の名所です
※こちらの物件はセットバックが16㎡必要です
詳細は担当まで
| 所在地 | 神奈川県横須賀市坂本町 |
|---|---|
| 交通 |
|
| 築年月 | 2014年7月(築11年10ヶ月) | 建物階数 | 地上2階 | ||
|---|---|---|---|---|---|
| 建物構造 | 木造 | ||||
| 延べ床面積 | 72.86m²(22.04坪) | ||||
| 間取内容 | 3LDK×1戸 |
||||
| 駐車場 | 有 |
||||
| 引渡/入居時期 | 相談 | 現況 | 空家 | ||
| 地目 | 宅地 | 用途地域 | 第一種中高層住居専用 | ||
| 都市計画 | 市街化区域 | 地勢 | 平坦 | ||
| 土地面積 | 129.13m²(39.06坪) | 土地面積計測方式 | 公簿 | ||
| セットバック | セットバック量 | 16m² | |||
| 建ぺい率 | 60% | 容積率 | 200% | ||
| 土地権利 | 所有権 | 接道状況 | 一方 | ||
| 接道種別1 | 公道 | 接道幅員1 | 1.65m | ||
| 国土法届出 | 不要 | ||||
| 物件番号 | 35195 | ||||
| 情報登録日 | 2025年8月18日 | 情報更新日 | 2025年8月18日 | ||
物件掲載内容と現況に相違がある場合は現況を優先といたします。














