このページを印刷する
- 価格
-
6,000万円
- 満室時表面利回り
- 3.40%
- 現行利回り
- 3.40%
■■■アピールポイント■■■■■■
■オーナーチェンジ
■志村三丁目駅徒歩4分
■主要採光南西向き
■駐車場有
■■■■■■■■■■■■■■■■■
~周辺インフォメーション~
・板橋区立志村第四中学校 約60m
・ファミリマート 約110m
・まいばすけっと(スーパー) 約140m
・ウエルパーク(ドラックストア) 約300m
・こうのファミリークリニック 約300m
・ロイヤルホスト(ファミリーレストラン) 約300m
・サンシティ小規模保育園 約500m
~志村三丁目駅ってこんなところ~
・都営三田線が走っています
・乗換えなしで大手町駅まで約25分です
・バス便も多く、赤羽駅西口:約20分程度でアクセス出来ます
・MEGAドン・キホーテ板橋志村店 駅から徒歩6分で24時間営業で便利です
※こちらの物件は建ぺい率がオーバーしています(増築した為)
詳細は担当まで
| 所在地 | 東京都板橋区志村 |
|---|---|
| 交通 |
|
| 築年月 | 1984年11月(築41年6ヶ月) | 建物階数 | 地上3階 | ||
|---|---|---|---|---|---|
| 建物構造 | 木造 | ||||
| 延べ床面積 | 155.9m²(47.15坪) | ||||
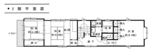
| 間取内容 | 6LDK×1戸 |
||||
| 駐車場 | 有 |
||||
| 引渡/入居時期 | 相談 | 現況 | 賃貸中 | ||
| 地目 | 宅地 | 用途地域 | 第一種住居 | ||
| 都市計画 | 市街化区域 | 地勢 | 平坦 | ||
| 土地面積 | 99.17m²(29.99坪) | 土地面積計測方式 | 公簿 | ||
| 建ぺい率 | 60% | 容積率 | 200% | ||
| 土地権利 | 所有権 | 接道状況 | 一方 | ||
| 接道種別1 | 公道 | 接道幅員1 | 6m | ||
| 国土法届出 | 不要 | ||||
| 物件番号 | 34965 | ||||
| 情報登録日 | 2025年8月11日 | 情報更新日 | 2025年8月11日 | ||
物件掲載内容と現況に相違がある場合は現況を優先といたします。











