東京都新宿区で不動産投資・収益不動産ならブレスプロパティーズ株式会社

物件詳細

アパート【安針塚駅徒歩5分】R7年7月築 2駅利用可 新築アパート

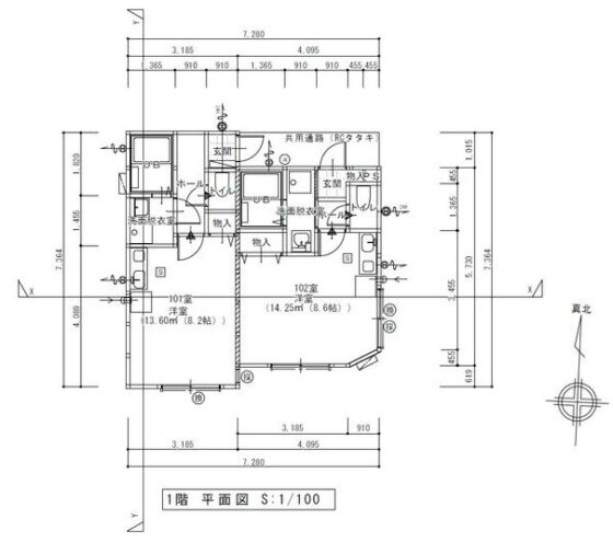
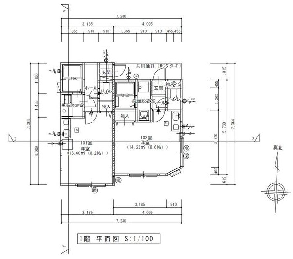
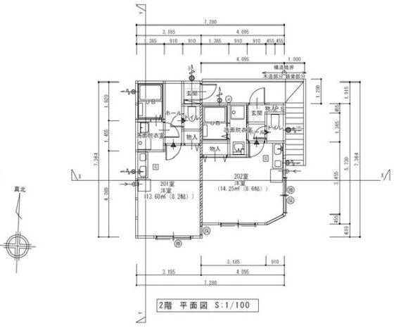
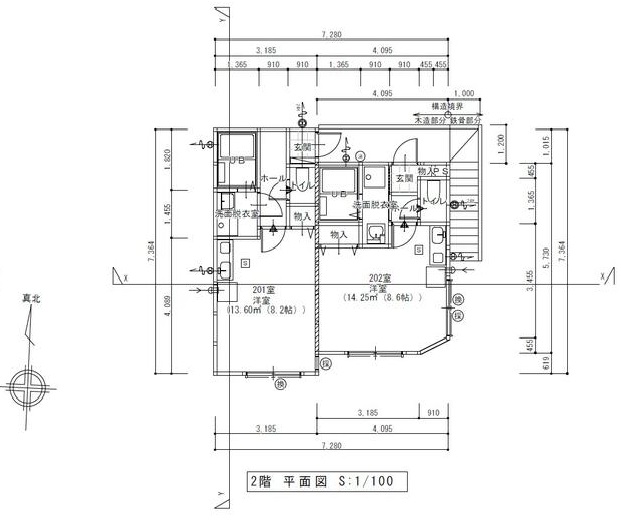
間取
間取
間取 間取

間取

間取

  • 前へ
  • 次へ

このページを印刷する

価格
3,800
満室時表面利回り
7.57%

■■■アピールポイント■■■■■■
■安針塚駅徒歩5分

■2025年7月築

■新築1棟アパート

■2駅利用可能

■■■■■■■■■■■■■■■■■

~周辺インフォメーション~
・セブンイレブン 約130m
・横須賀市消防局 約280m
・Basil And Clove(イタリア料理) 約350m
・京急ストア(スーパー) 約400m
・ウェルシティ若松クリニック 約1.1㎞

~安針塚駅ってこんなところ~
・京急本線が通っています
・横浜駅まで約29分です。
・海が近く、自然が多いです

~田浦駅ってこんなところ~
・付近に病院があるため、通院には便利です
・駅の北側は海で、海上自衛隊関連の施設が建ち並んでいます
・南口からは、逗子駅や追浜駅方面へ向かう路線バスがあり便利です

所在地

神奈川県横須賀市長浦町

交通
  • 京急本線安針塚駅徒歩5分
  • 京急本線京急田浦駅徒歩13分
築年月 2025年7月(築3ヶ月) 建物階数 地上2階
建物構造 木造
延べ床面積 93.42m²(28.25坪)
間取内容

1R×4戸

駐車場
引渡/入居時期 相談 現況 賃貸中
地目 宅地 用途地域 第一種中高層住居専用
都市計画 市街化区域 地勢 その他
土地面積 101.47m²(30.69坪) 土地面積計測方式 公簿
建ぺい率 60% 容積率 160%
土地権利 所有権 接道状況 一方
接道種別1 私道 接道幅員1
国土法届出 不要
物件番号 34352
情報登録日 2025年7月28日 情報更新日 2025年7月28日

物件掲載内容と現況に相違がある場合は現況を優先といたします。

  • お問い合わせ内容入力
  • 内容確認
  • お問い合わせ完了
物件名
【安針塚駅徒歩5分】R7年7月築 2駅利用可 新築アパート(物件番号:34352
お名前必須
フリガナ
セイメイ
メールアドレス必須

携帯電話のメールアドレスをご入力される方へ

下記ドメインを受信できるように設定してください。
bless-properties.com
メールアドレスに、連続した . (ドット)や、@ の直前に . (ドット)がある場合、メールを送信できない場合がございます。
他のアドレスか、電話番号等の連絡先もご入力くださいますようお願いします。
メールアドレスの確認

 

メール誤送信防止のため、入力内容を今一度お確かめください

電話番号必須
--
お問い合わせ内容必須