このページを印刷する
- 価格
-
5億4,900万円
- 満室時表面利回り
- 4%
■■■アピールポイント■■■■■■
■錦糸町駅 徒歩1分
■2線利用可
■新築ビル
■賃借人決定済み(大手企業)
■■■■■■■■■■■■■■■■■
~周辺インフォメーション~
・ミニストップまで 約75m
・ファミリーマートまで 約80m
・錦糸公園まで 約100m
・ドン・キホーテまで 約200m
・アルカキット(大型商業ビル)まで 約210m
・錦糸町パルコまで 約400m
・錦糸町マルイまで 約500m
~錦糸町駅ってこんなところ~
・JR総武線・中央線・メトロ半蔵門線の3駅利用可
・駅前にはパルコ、マルイをはじめ大型商業施設多数
・大型の公園もあり、子連れも多いエリア
・東京駅まで 約6分
・半蔵門線はスカイツリーラインとの相互乗り入れありで観光にも便利
| 所在地 | 東京都墨田区錦糸 |
|---|---|
| 交通 |
|
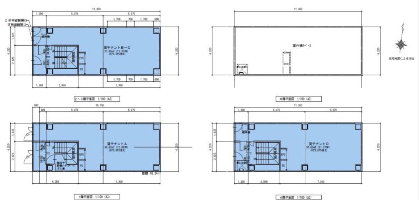
| 築年月 | 2025年10月(築3ヶ月) | 建物階数 | 地上4階 | ||
|---|---|---|---|---|---|
| 建物構造 | 鉄骨造 | ||||
| 延べ床面積 | 192.92m²(58.35坪) | ||||
| 間取内容 | |||||
| 駐車場 | |||||
| 引渡/入居時期 | 現況 | ||||
| 地目 | 宅地 | 用途地域 | 商業 | ||
| 都市計画 | 市街化区域 | 地勢 | 平坦 | ||
| 土地面積 | 8m²(2.42坪) | 土地面積計測方式 | 公簿 | ||
| 建ぺい率 | 80% | 容積率 | 500% | ||
| 土地権利 | 所有権 | 接道状況 | 一方 | ||
| 接道種別1 | 公道 | 接道幅員1 | 8m | ||
| 国土法届出 | 不要 | ||||
| 物件番号 | 33991 | ||||
| 情報登録日 | 2025年7月18日 | 情報更新日 | 2025年7月18日 | ||
物件掲載内容と現況に相違がある場合は現況を優先といたします。





