このページを印刷する
- 価格
-
1億2,600万円
- 満室時表面利回り
- 6.09%
- 現行利回り
- 6.09%
■■■アピールポイント■■■■■■
■満室稼働中
■2020年築 オートロック
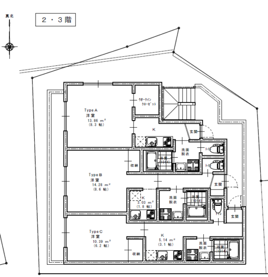
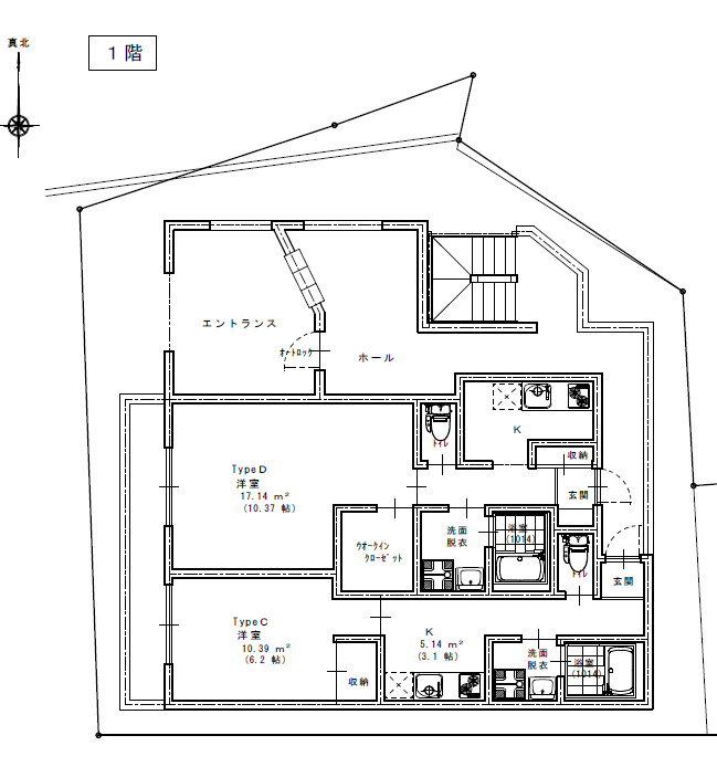
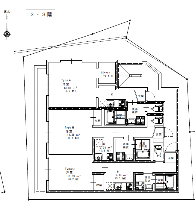
■専有面積26.3㎡~35.1㎡ 広め1Kタイプ
■南太田駅 徒歩6分
■■■■■■■■■■■■■■■■■
~周辺インフォメーション~
・セブンイレブンまで 約230m
・まいばすけっとまで 約290m
・マツモトキヨシまで 約300m
・ローソンまで 約450m
・清水ヶ丘病院まで 約450m
・業務スーパーまで 約550m
・スーパーマルヤマまで 約550m
~南太田駅ってこんなところ~
・横浜駅まで 約7分
・川崎駅まで 約14分
・品川駅まで 約23分
・駅周辺にスーパー・ドラックストア・コンビニあり
・バス便多数、桜木町駅・横浜駅・戸塚駅へアクセス
| 所在地 | 神奈川県横浜市南区庚台 |
|---|---|
| 交通 |
|
| 築年月 | 2020年8月(築5年5ヶ月) | 建物階数 | 地上3階 | ||
|---|---|---|---|---|---|
| 建物構造 | 木造 | ||||
| 延べ床面積 | 272.55m²(82.44坪) | ||||
| 間取内容 | 1K×8戸 |
||||
| 駐車場 | |||||
| 引渡/入居時期 | 現況 | ||||
| 地目 | 宅地 | 用途地域 | |||
| 都市計画 | 市街化区域 | 地勢 | |||
| 土地権利 | 所有権 | 接道状況 | |||
| 物件番号 | 33565 | ||||
| 情報登録日 | 2025年7月5日 | 情報更新日 | 2025年12月5日 | ||
物件掲載内容と現況に相違がある場合は現況を優先といたします。
















