このページを印刷する
- 価格
-
2,000万円
■■■アピールポイント■■■■■■
■自己利用可能
■国道140号線沿線、視認性良好
■土地は約90坪
■駐車場もたっぷりあります
■■■■■■■■■■■■■■■■■
~周辺インフォメーション~
・ヤマダデンキ 約250m
・手打ちうどん 約260m
・花園フォレスト(洋菓子店) 約300m
・ファッションセンターしまむら 約350m
・JA花園 農産物直売所 約750m
・郵便局 約750m
・花園天然温泉 約800m
・寄居中央眼科 約900m
~小前田駅ってこんなところ~
・秩父鉄道が走っています
・熊谷駅まで約25分です
・荒川が近く、田園風景が広がり、四季折々の自然を身近に感じられます。
| 所在地 | 埼玉県深谷市小前田 |
|---|---|
| 交通 |
|
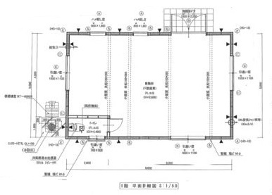
| 築年月 | 2016年3月(築9年9ヶ月) | 建物階数 | 地上1階 | ||
|---|---|---|---|---|---|
| 建物構造 | 木造 | ||||
| 延べ床面積 | 40m²(12.1坪) | ||||
| 間取内容 | 店舗・事務所×1戸 |
||||
| 駐車場 | 有 |
||||
| 引渡/入居時期 | 相談 | 現況 | 空家 | ||
| 地目 | 宅地 | 用途地域 | 無指定 | ||
| 都市計画 | 市街化区域 | 地勢 | 平坦 | ||
| 土地面積 | 298m²(90.14坪) | 土地面積計測方式 | 公簿 | ||
| 建ぺい率 | 60% | 容積率 | 200% | ||
| 土地権利 | 所有権 | 接道状況 | 一方 | ||
| 接道種別1 | 公道 | 接道幅員1 | 25m | ||
| 国土法届出 | 不要 | ||||
| 物件番号 | 33263 | ||||
| 情報登録日 | 2025年6月27日 | 情報更新日 | 2025年6月27日 | ||
物件掲載内容と現況に相違がある場合は現況を優先といたします。







