このページを印刷する
- 価格
-
6億9,800万円
- 満室時表面利回り
- 4.40%
- 現行利回り
- 4.40%
■■■アピールポイント■■■■■■
■満室稼働中
■西新宿駅徒歩2分
■店舗×1戸、事務所×2戸の商業ビル
■2024年12月防水工事、外壁洗浄完了
■■■■■■■■■■■■■■■■■
~周辺インフォメーション~
・黒毛和牛焼肉 白か黒 約60m
・タリーズコーヒー(コーヒーショップ) 約160m
・スギ薬局(ドラッグストア) 約170m
・ファミリマート 約170m
・郵便局 約220m
・アイランド内科クリニック 約350m
~西新宿駅ってこんなところ~
・東京メトロ丸の内線が通っています
・東京駅まで乗換なしで約21分です
・新宿が近いので買い物、遊ぶ場所も便利な環境です
~新宿駅ってこんなところ~
・9路線あり、アクセスは非常に良いです
・乗換なしで池袋駅、渋谷駅、中野駅まで約5分です
・伊勢丹やルミネなど複合商業施設が多く便利です
| 所在地 | 東京都新宿区西新宿 |
|---|---|
| 交通 |
|
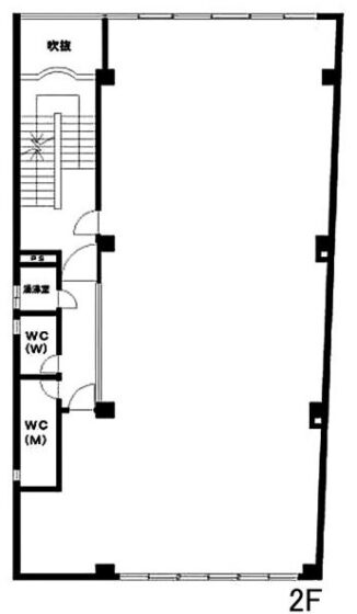
| 築年月 | 1985年12月(築40年5ヶ月) | 建物階数 | 地上3階 | ||
|---|---|---|---|---|---|
| 建物構造 | RC | ||||
| 延べ床面積 | 543.35m²(164.36坪) | ||||
| 間取内容 | 店舗・事務所×3戸 |
||||
| 駐車場 | |||||
| 引渡/入居時期 | 相談 | 現況 | 賃貸中 | ||
| 地目 | 宅地 | 用途地域 | 商業 | ||
| 都市計画 | 市街化区域 | 地勢 | 平坦 | ||
| 土地面積 | 225m²(68.06坪) | 土地面積計測方式 | 公簿 | ||
| 私道負担面積 | 21.8m²(6.59坪) | ||||
| セットバック | 有 | セットバック量 | 21.8m² | ||
| 建ぺい率 | 80% | 容積率 | 500% | ||
| 土地権利 | 所有権 | 接道状況 | 一方 | ||
| 接道種別1 | 私道 | 接道幅員1 | 3.5m | ||
| 国土法届出 | 不要 | ||||
| 物件番号 | 33087 | ||||
| 情報登録日 | 2025年6月23日 | 情報更新日 | 2025年6月23日 | ||
物件掲載内容と現況に相違がある場合は現況を優先といたします。






