このページを印刷する
- 価格
-
2億3,800万円
- 満室時表面利回り
- 6.05%
- 現行利回り
- 6.05%
■■■アピールポイント■■■■■■
■自由が丘駅 徒歩4分
■学習塾入居(令和8年1月~)
■内外装リフォーム済み
■■■■■■■■■■■■■■■■■
~周辺インフォメーション~
・ローソンまで 約130m
・トレインチ自由が丘(ショッピングモール)まで 約150m
・JIYUGAOKA de aone(ショッピングモール)まで 約180m
・ファミリーマートまで 約350m
・メルサ自由が丘(ショッピングモール)まで 約400m
~自由が丘駅ってこんなところ~
・東急東横線、大井町線2線利用可
・渋谷駅まで 約15分
・大型商業施設が5店舗以上 「フレル・ウィズ自由が丘」「Luz自由が丘」「メルサ自由が丘」など
・有名スイーツ店や人気カフェが多く集まる“スイーツの聖地”
・グルメ、ショッピングを楽しめるおしゃれタウン
・街全体がヨーロッパのような洗練された雰囲気
| 所在地 | 東京都世田谷区奥沢 |
|---|---|
| 交通 |
|
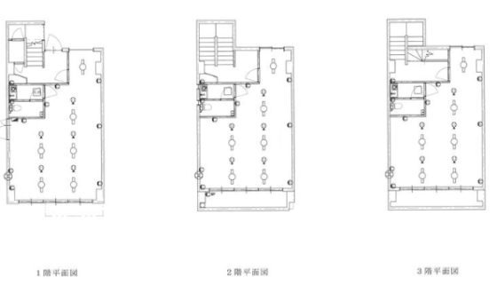
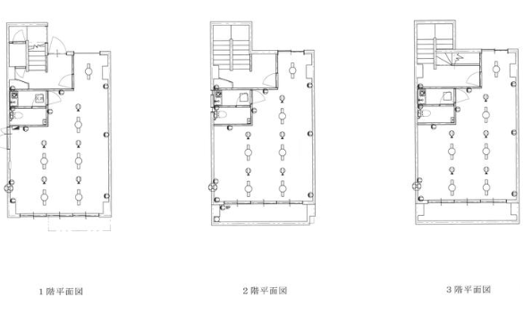
| 築年月 | 1981年9月(築44年6ヶ月) | 建物階数 | 地上3階 | ||
|---|---|---|---|---|---|
| 建物構造 | RC | ||||
| 延べ床面積 | 171.23m²(51.79坪) | ||||
| 間取内容 | |||||
| 駐車場 | |||||
| 引渡/入居時期 | 相談 | 現況 | 賃貸中 | ||
| 地目 | 宅地 | 用途地域 | 第一種中高層住居専用 | ||
| 都市計画 | 市街化区域 | 地勢 | 平坦 | ||
| 土地面積 | 93.04m²(28.14坪) | 土地面積計測方式 | 公簿 | ||
| 建ぺい率 | 60% | 容積率 | 200% | ||
| 土地権利 | 所有権 | 接道状況 | 一方 | ||
| 接道種別1 | 公道 | 接道幅員1 | 6m | ||
| 国土法届出 | 不要 | ||||
| 物件番号 | 27686 | ||||
| 情報登録日 | 2025年1月14日 | 情報更新日 | 2026年2月10日 | ||
物件掲載内容と現況に相違がある場合は現況を優先といたします。











