東京都新宿区で不動産投資・収益不動産ならブレスプロパティーズ株式会社

物件一覧

売買:JR総武線

  • NEWアパート【満室】2駅2路線利用可 バストイレ別 1K×8戸

    205.35m²

    築年月2016年10月(築9年)

    千葉県千葉市花見川区検見川町

    • JR総武線新検見川駅徒歩14分
    • 京成千葉線検見川駅徒歩16分

    価格7,900

    満室時表面利回り:6.85%

    現行利回り:6.85%

    • 外観
    • 外観
    • 外観
    • 間取
    • 内装
    面積築年月構造
    205.35m² 2016年10月(築9年)木造
  • NEWアパート【満室】2路線利用可 1K×15戸 駐輪スペース有

    238.00m²

    築年月2019年8月(築6年)

    千葉県船橋市栄町

    • JR総武線船橋駅徒歩25分
    • JR総武本線船橋駅徒歩25分
    • 京成本線 京成船橋駅 徒歩22分

    価格15,000

    満室時表面利回り:7.02%

    現行利回り:7.02%

    • 外観
    • メールボックス
    • ゴミステーション
    • 外観
    • 間取
    面積築年月構造
    238.00m² 2019年8月(築6年)木造
  • 更新アパート【高稼働】亀戸駅徒歩8分 角地 店舗×賃貸×倉庫

    133.43m²

    築年月1951年1月(築75年)

    東京都江東区亀戸

    • JR総武線亀戸駅徒歩8分
    • 東武亀戸線亀戸水神駅徒歩9分

    価格6,300

    満室時表面利回り:12.04%

    • 外観
    • 外観
    • 外観
    • 間取
    • 内装
    面積築年月構造
    133.43m² 1951年1月(築75年)その他
  • NEWアパート【満室稼働中】利回り約8.3% 幕張駅徒歩7分

    198.34m²

    築年月1985年2月(築41年)

    千葉県千葉市花見川区幕張町

    • JR総武線幕張駅徒歩7分
    • 京成千葉線検見川駅徒歩12分

    価格5,600

    満室時表面利回り:8.31%

    現行利回り:8.31%

    • 外観
    • 間取
    • 内装
    • 内装
    • キッチン
    面積築年月構造
    198.34m² 1985年2月(築41年)木造
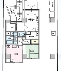
  • NEWマンション【住吉駅 徒歩1分】四ツ目通沿い 3~5F部分自己利用可

    49.13m²

    築年月1995年9月(築30年)

    東京都江東区住吉

    • 東京メトロ半蔵門線住吉駅徒歩1分
    • JR総武線錦糸町駅徒歩11分

    価格17,500

    満室時表面利回り:4.46%

    • 外観
    • 外観
    • 外観
    • 外観
    • 間取
    面積築年月構造
    49.13m² 1995年9月(築30年)鉄骨造
  • マンション【駐車場あり】1K 2DK混合タイプ RC造

    565.04m²

    築年月1993年1月(築33年)

    千葉県千葉市花見川区犢橋町

    • JR総武線新検見川駅
    • JR総武線 新検見川駅 バス16分 徒歩17分(バス:さつきが丘団地停留所)

    価格8,500

    満室時表面利回り:6.4%

    • 外観
    • 間取
    • 内装
    • 内装
    面積築年月構造
    565.04m² 1993年1月(築33年)RC
  • ビル【駅徒歩1分】角地 RCビル

    78m²

    築年月1971年7月(築54年)

    千葉県市川市真間

    • 京成本線市川真間駅徒歩1分
    • JR総武線市川駅徒歩9分

    価格9,200

    満室時表面利回り:7.52%

    • 外観
    • 外観
    • 外観
    • 間取
    • 画像準備中
    面積築年月構造
    78m² 1971年7月(築54年)RC
  • 店舗付住宅【庚申通り商店街沿い】空室渡し 自己利用可

    57.36m²

    築年月1972年1月(築54年)

    東京都杉並区高円寺北

    • JR中央線高円寺駅徒歩7分
    • JR総武線高円寺駅徒歩7分

    価格13,500

    • 外観
    • 外観
    • 内装
    • 間取
    • 間取
    面積築年月構造
    57.36m² 1972年1月(築54年)その他
  • アパート【満室利回り約11.12%】亀戸駅8分 2方接道

    133.43m²

    築年月1951年1月(築75年)

    東京都江東区亀戸

    • JR総武線亀戸駅徒歩8分
    • 東武亀戸線亀戸水神駅徒歩9分

    価格6,800

    満室時表面利回り:11.12%

    • 外観
    • 外観
    • 間取
    • 外観
    面積築年月構造
    133.43m² 1951年1月(築75年)その他
  • アパート【満室】バス停1分 三鷹駅・吉祥寺駅利用 杏林大学近郊

    210.41m²

    築年月2004年8月(築21年)

    東京都三鷹市新川

    • JR総武線三鷹駅
    • JR中央線吉祥寺駅
    • 三鷹駅より バス乗車10分 三鷹農協バス停より 徒歩約1分
      吉祥寺駅より バス乗車12分 三鷹農協バス停より 徒歩約1分

    価格18,000

    満室時表面利回り:4.51%

    現行利回り:4.51%

    • 外観
    • 外観
    • 間取
    • 内装
    面積築年月構造
    210.41m² 2004年8月(築21年)木造